3386 Brushy Hill Rd
Fayetteville, NC 28306

Scroll to Content

Images

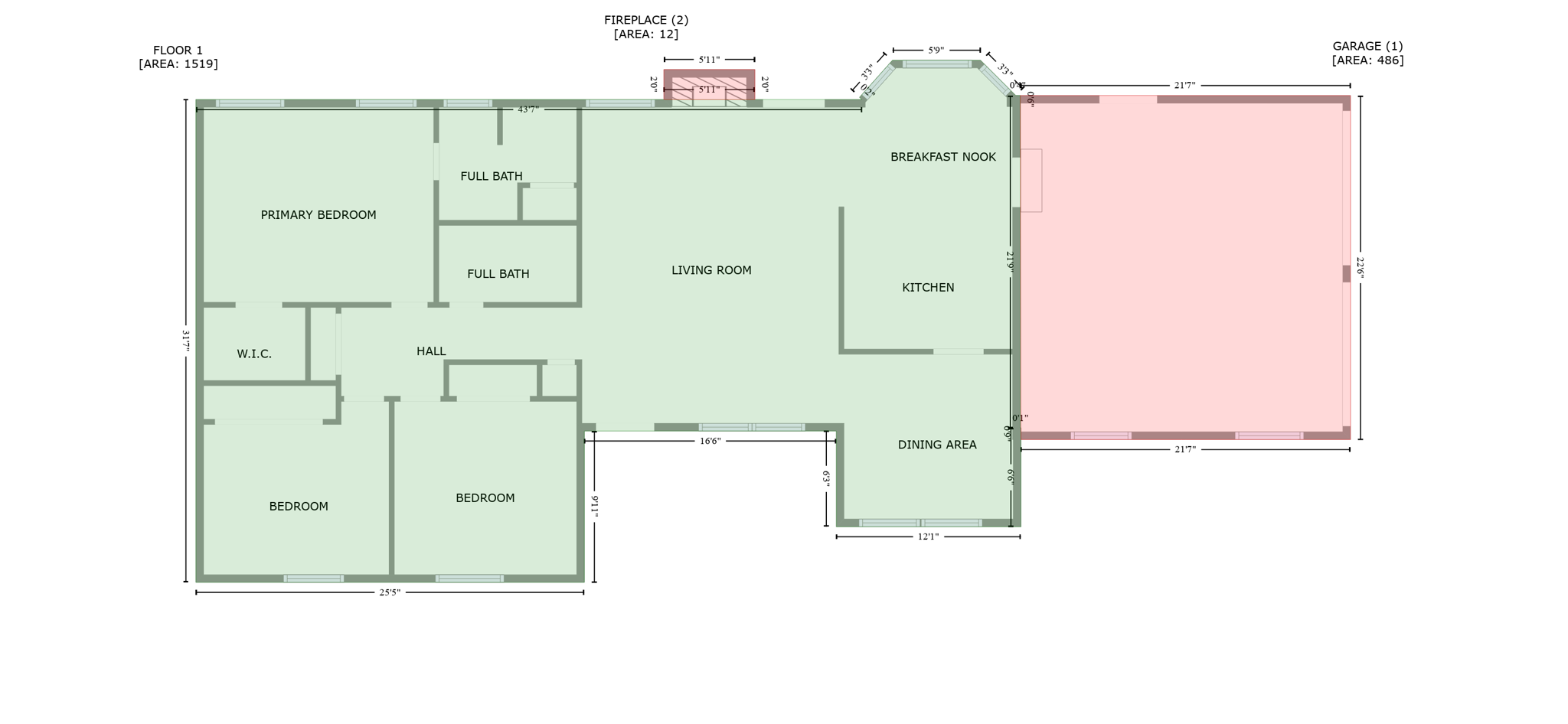
Floor Plans

3D Tour

Content Coming Soon

Contact

Feel free to contact us for more details!

Andrea Balkcom

Andrea Balkcom

RE/MAX Southern Properties

2602672377

andrea.balkcom@remax.net