6604 Wicked Oak Ln
Charlotte, NC 28216

Scroll to Content

Images

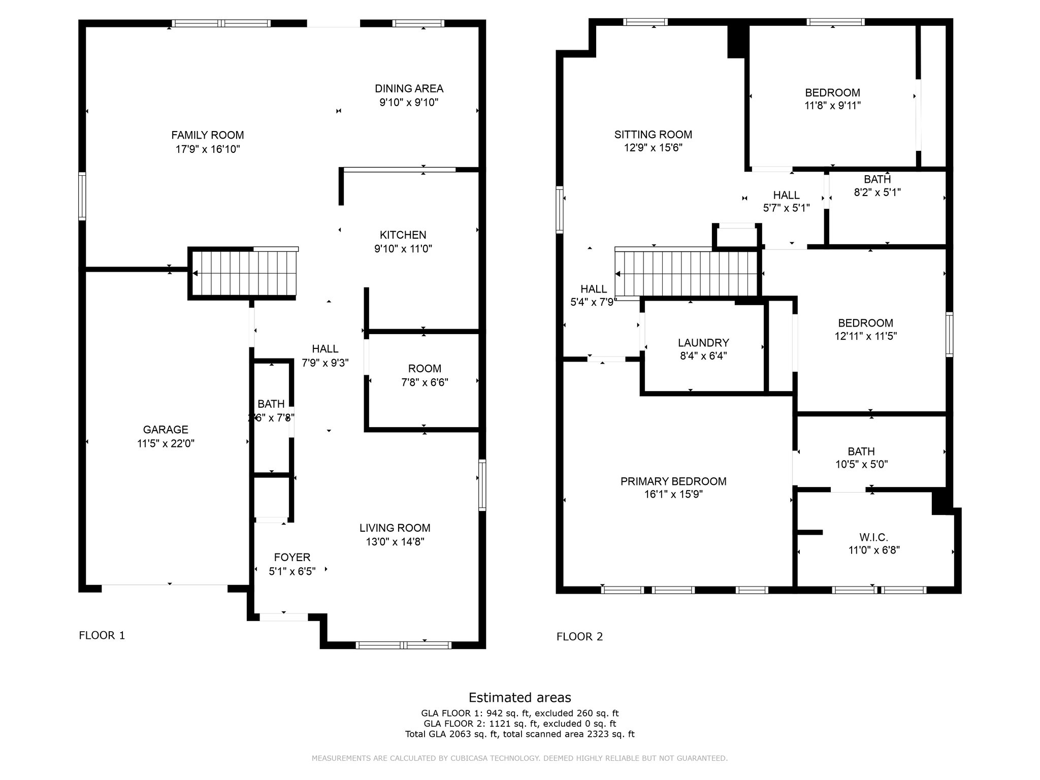
Floor Plans