2353 Cooper Rd, Graham, NC 27253
Toggle Navigation
Images
Floor Plans
Map
2353 Cooper Rd
Graham, NC 27253
Scroll to Content
Images
Slideshow
Photo Grid
Hide
Previous
Next
Show more
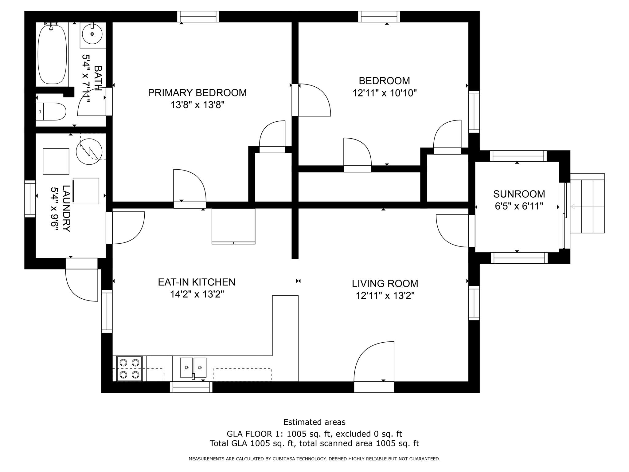
Floor Plans
Slideshow
Photo Grid
Hide
Previous
Next