82 Greasy Cove Rd, Leicester, NC 28748
Toggle Navigation
Images
Floor Plans
Map
82 Greasy Cove Rd
Leicester, NC 28748
Scroll to Content
Images
Slideshow
Photo Grid
Hide
Previous
Next
Show more
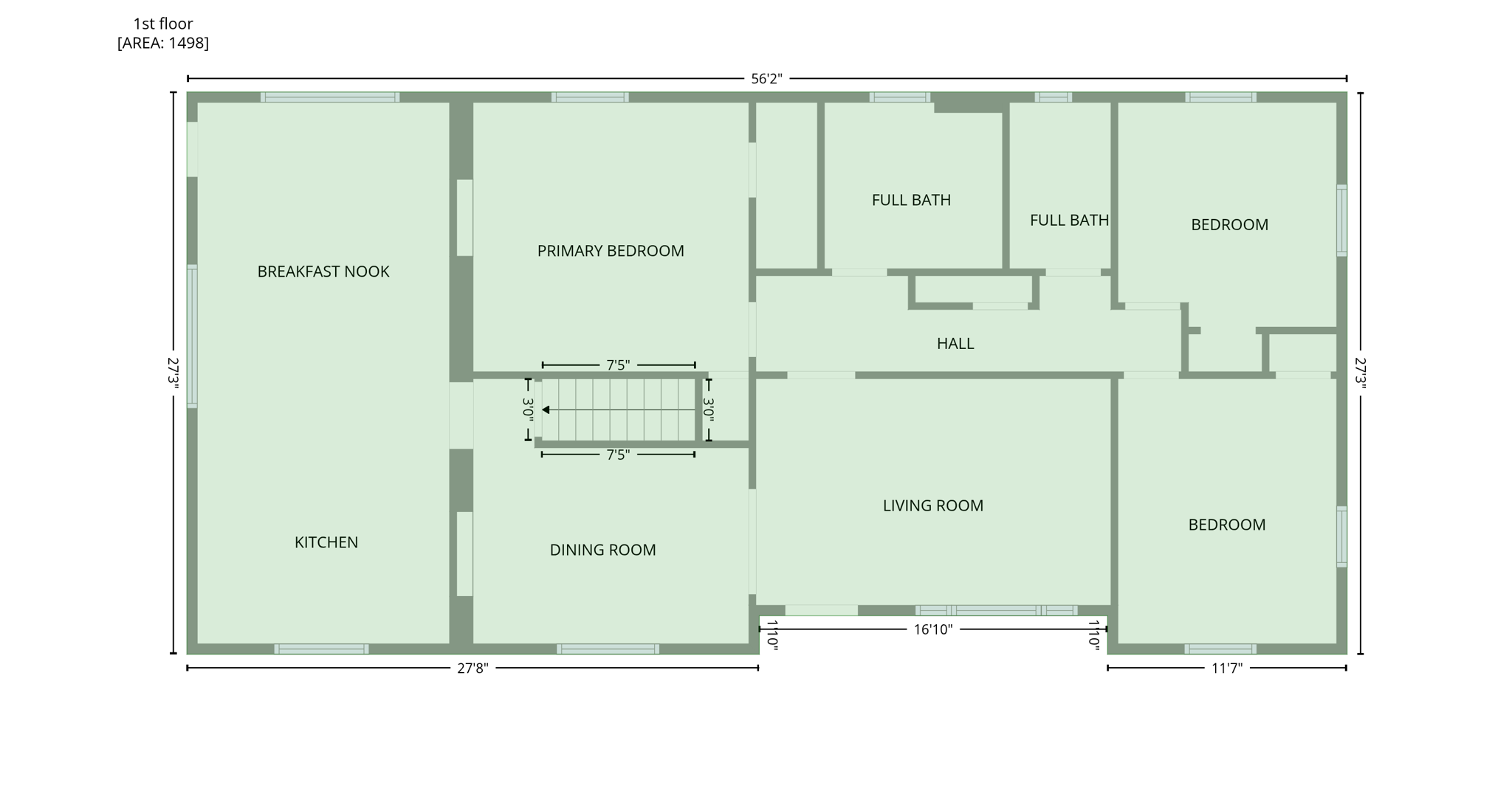
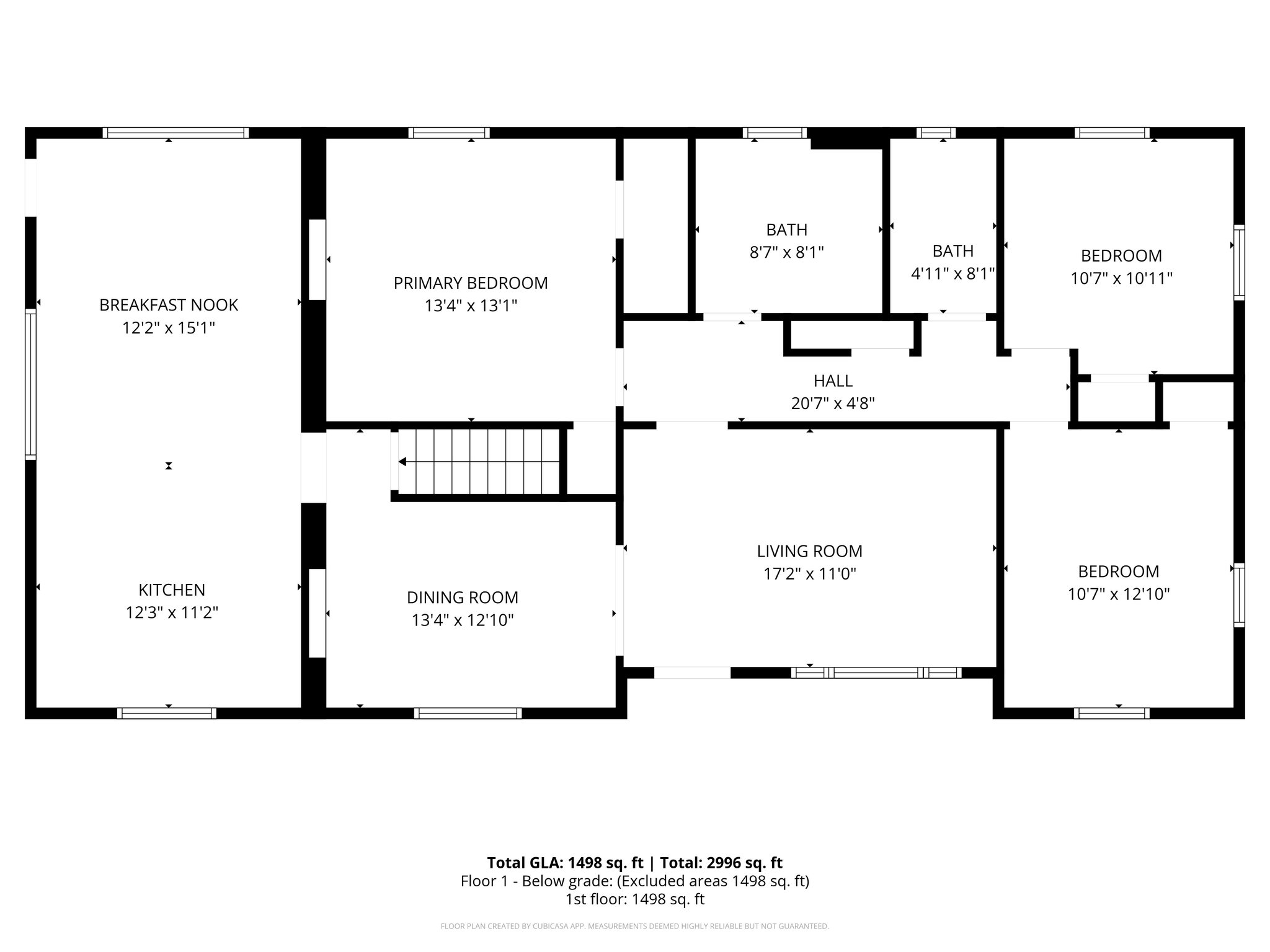
Floor Plans
Slideshow
Photo Grid
Hide
Previous
Next