183 Lunar Trace Rd, Waynesville, NC 28786
Toggle Navigation
Images
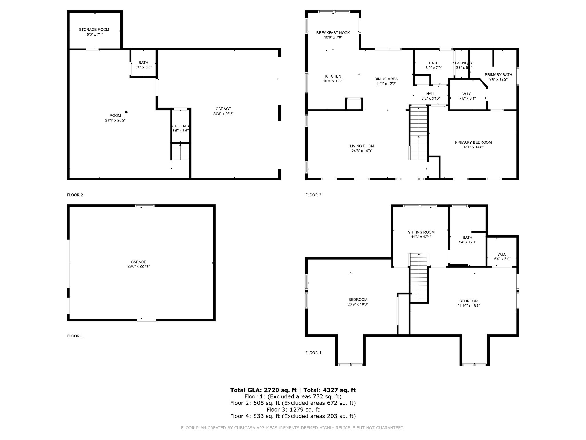
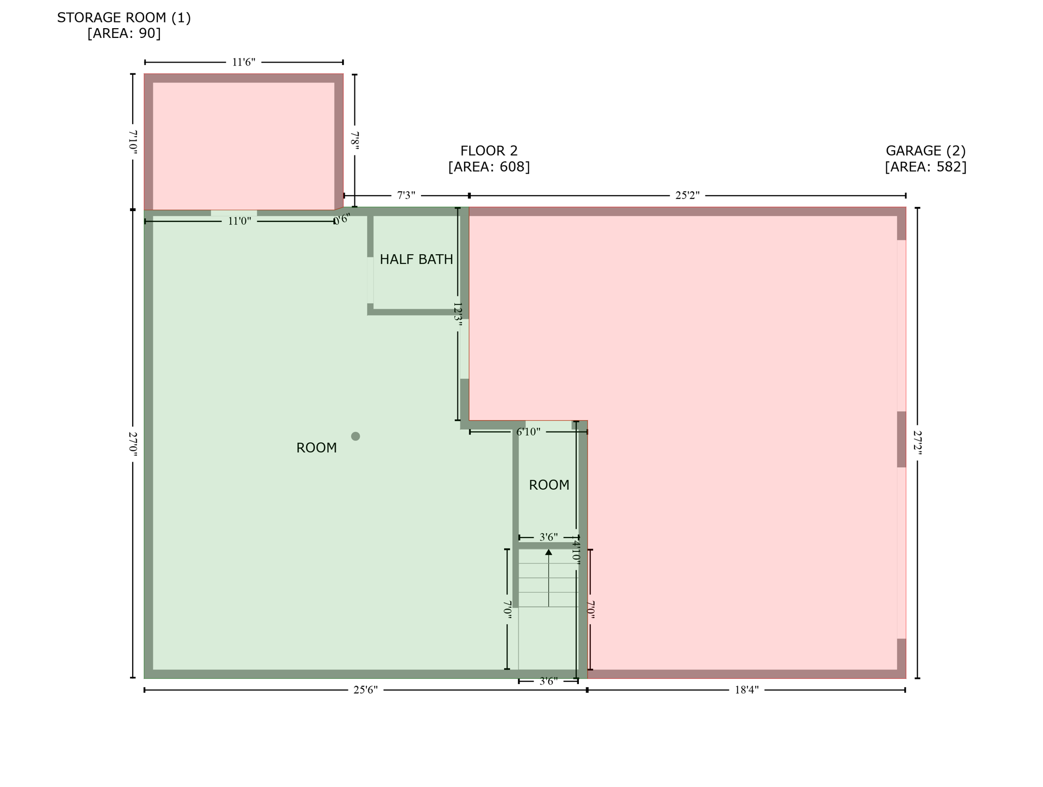
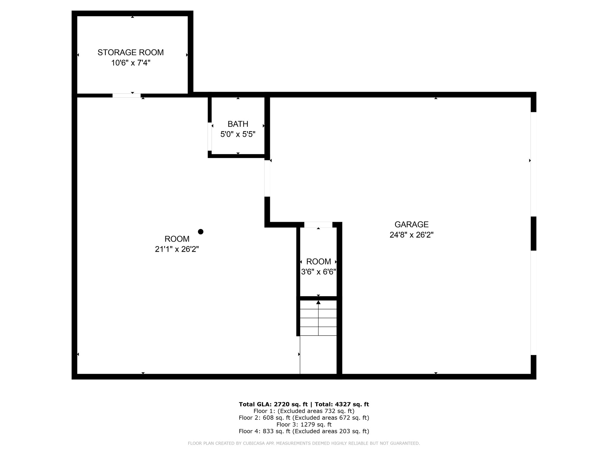
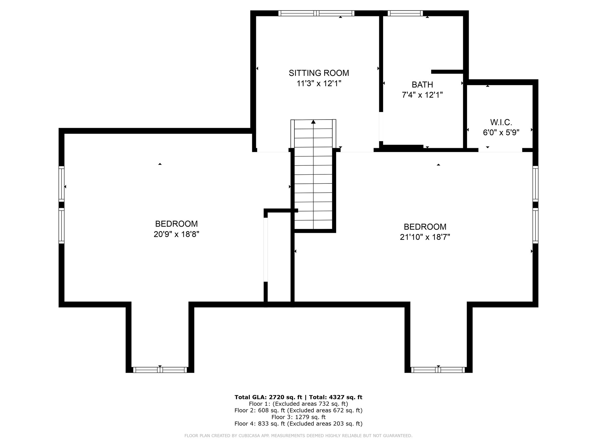
Floor Plans
3D Tour
Map
183 Lunar Trace Rd
Waynesville, NC 28786
Scroll to Content
Images
Slideshow
Photo Grid
Hide
Previous
Next
Show more
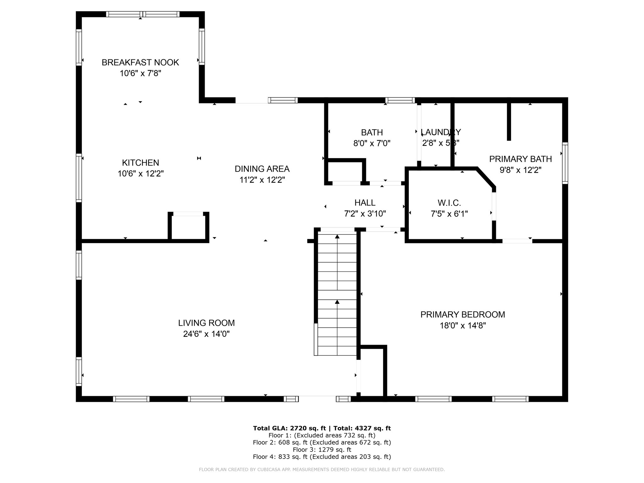
Floor Plans
Slideshow
Photo Grid
Hide
Previous
Next
3D Tour