11305 Clayford Ridge, Charlotte, NC 28215
Toggle Navigation
Details
Images
Floor Plans
Map
11305 Clayford Ridge
Charlotte, NC 28215
Scroll to Content
Details
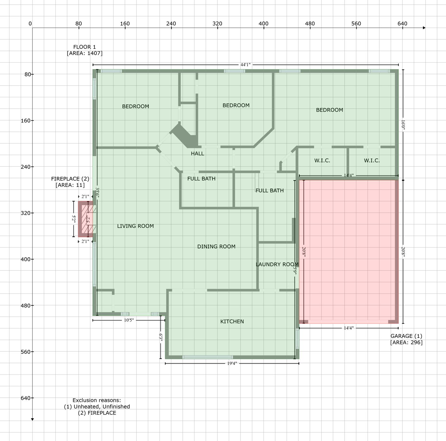
$315,000
3 Bedrooms
2 Bathrooms
1,407 Sq/ft
Lot 0.23 Acres
3 Parking Spots
Built in 1989
MLS: 4061732
Images
Slideshow
Photo Grid
Hide
Previous
Next
Show more
Floor Plans
Slideshow
Photo Grid
Hide
Previous
Next