1301 Colonial Club Rd, Wake Forest, NC 27587
Toggle Navigation
Images
Floor Plans
3D Tour
Map
1301 Colonial Club Rd
Wake Forest, NC 27587
Scroll to Content
Images
Slideshow
Photo Grid
Hide
Previous
Next
Show more
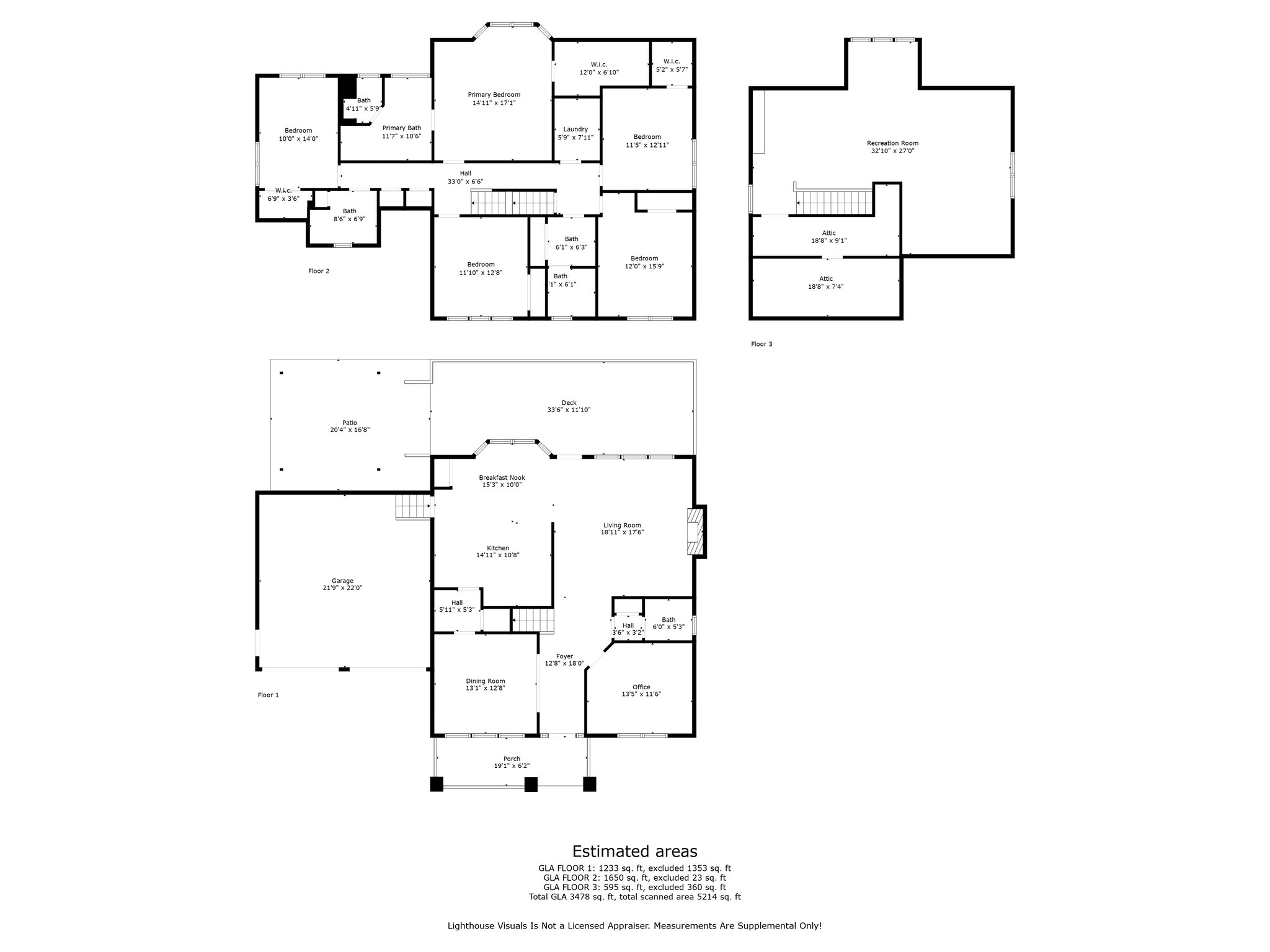
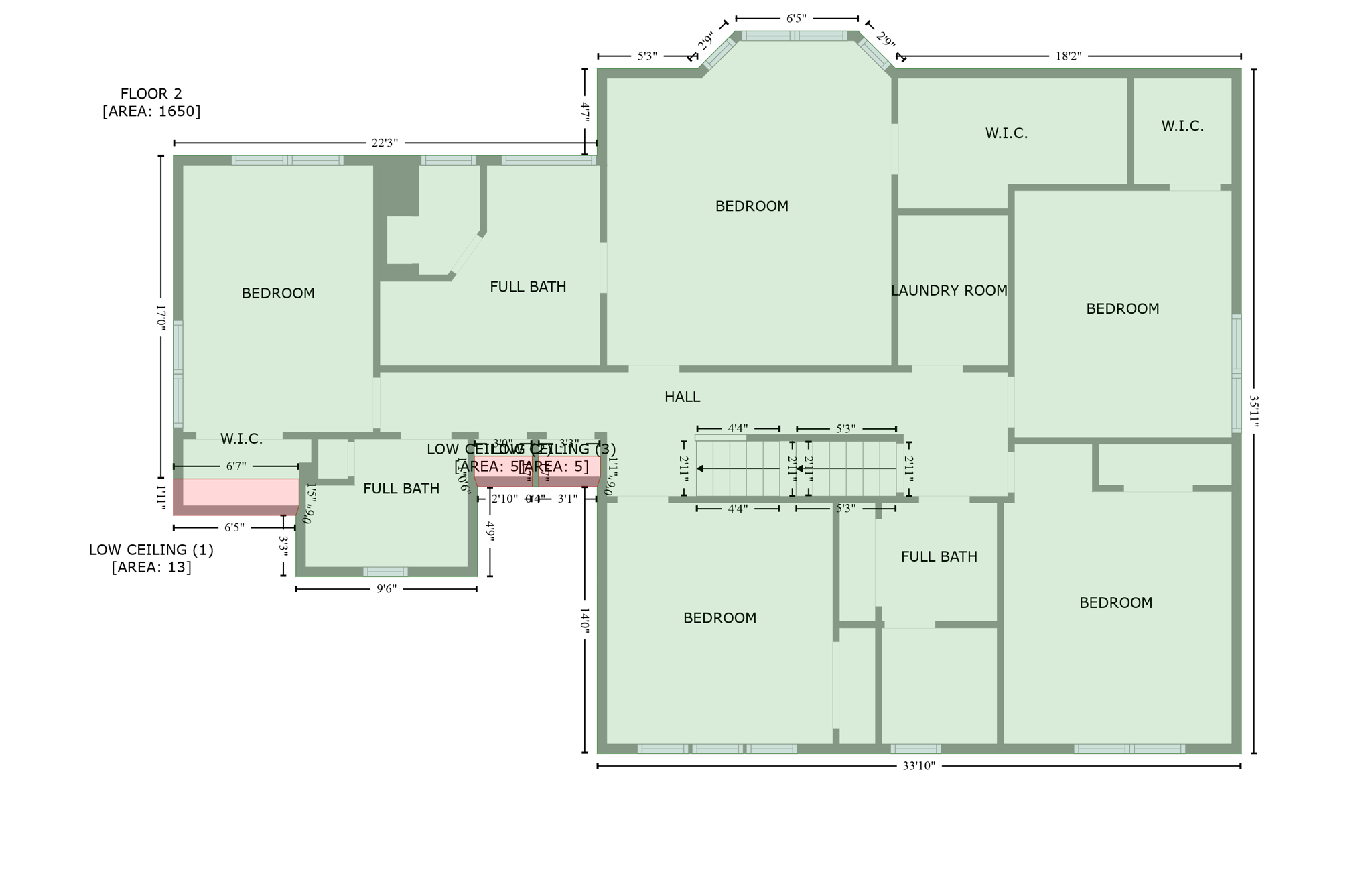
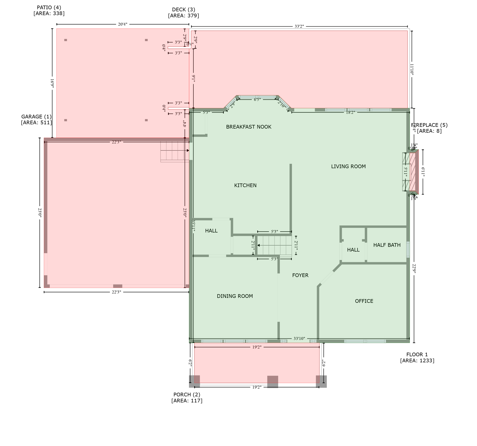
Floor Plans
Slideshow
Photo Grid
Hide
Previous
Next
3D Tour
Content Coming Soon