145 Farm Springs Dr, Mount Holly, NC 28120
Toggle Navigation
Images
Floor Plans
Map
145 Farm Springs Dr
Mount Holly, NC 28120
Scroll to Content
Images
Slideshow
Photo Grid
Hide
Previous
Next
Show more
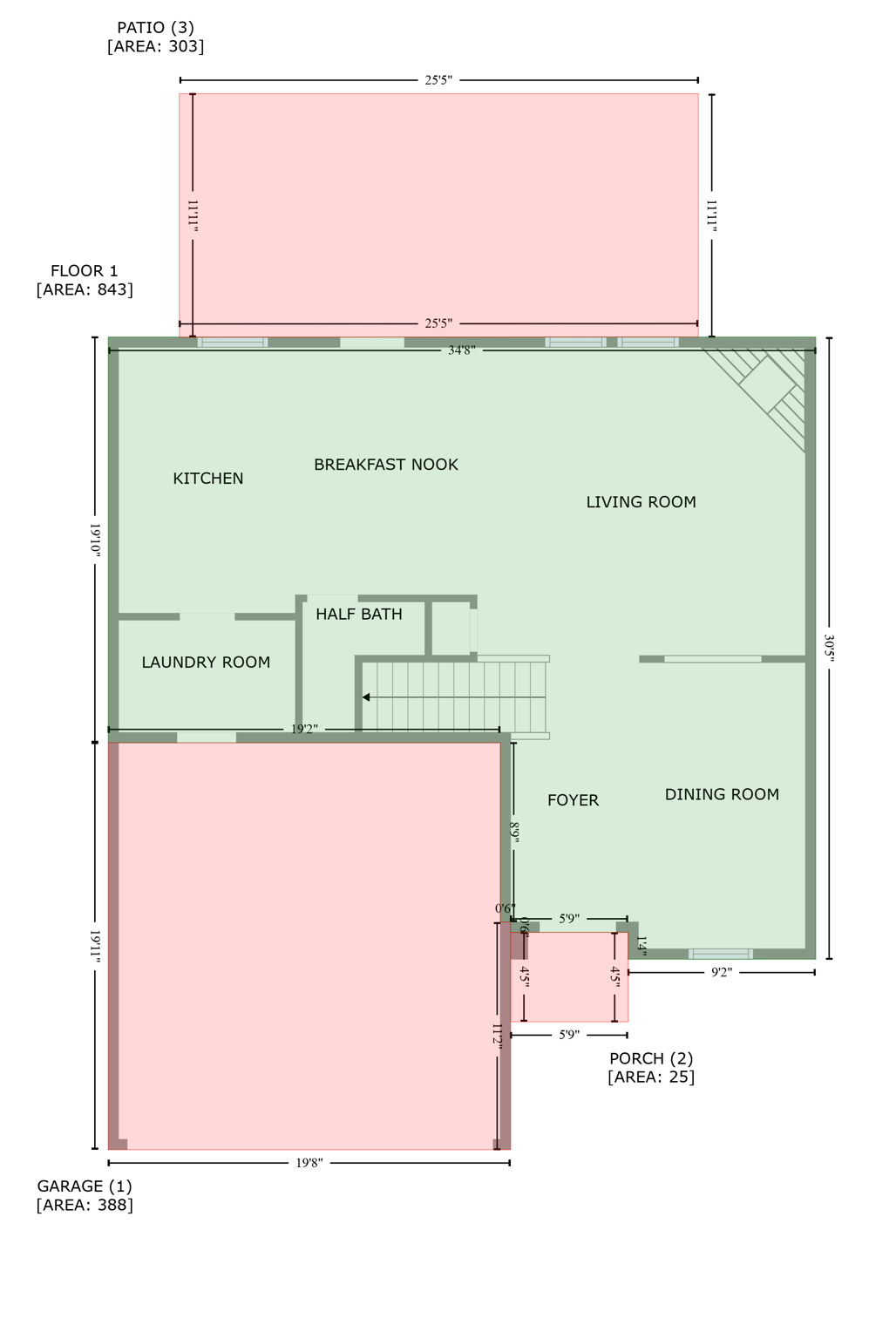
Floor Plans
Slideshow
Photo Grid
Hide
Previous
Next