7012 Falconbridge Rd, Chapel Hill, NC 27517
Toggle Navigation
Images
Floor Plans
Map
7012 Falconbridge Rd
Chapel Hill, NC 27517
Scroll to Content
Images
Slideshow
Photo Grid
Hide
Previous
Next
Show more
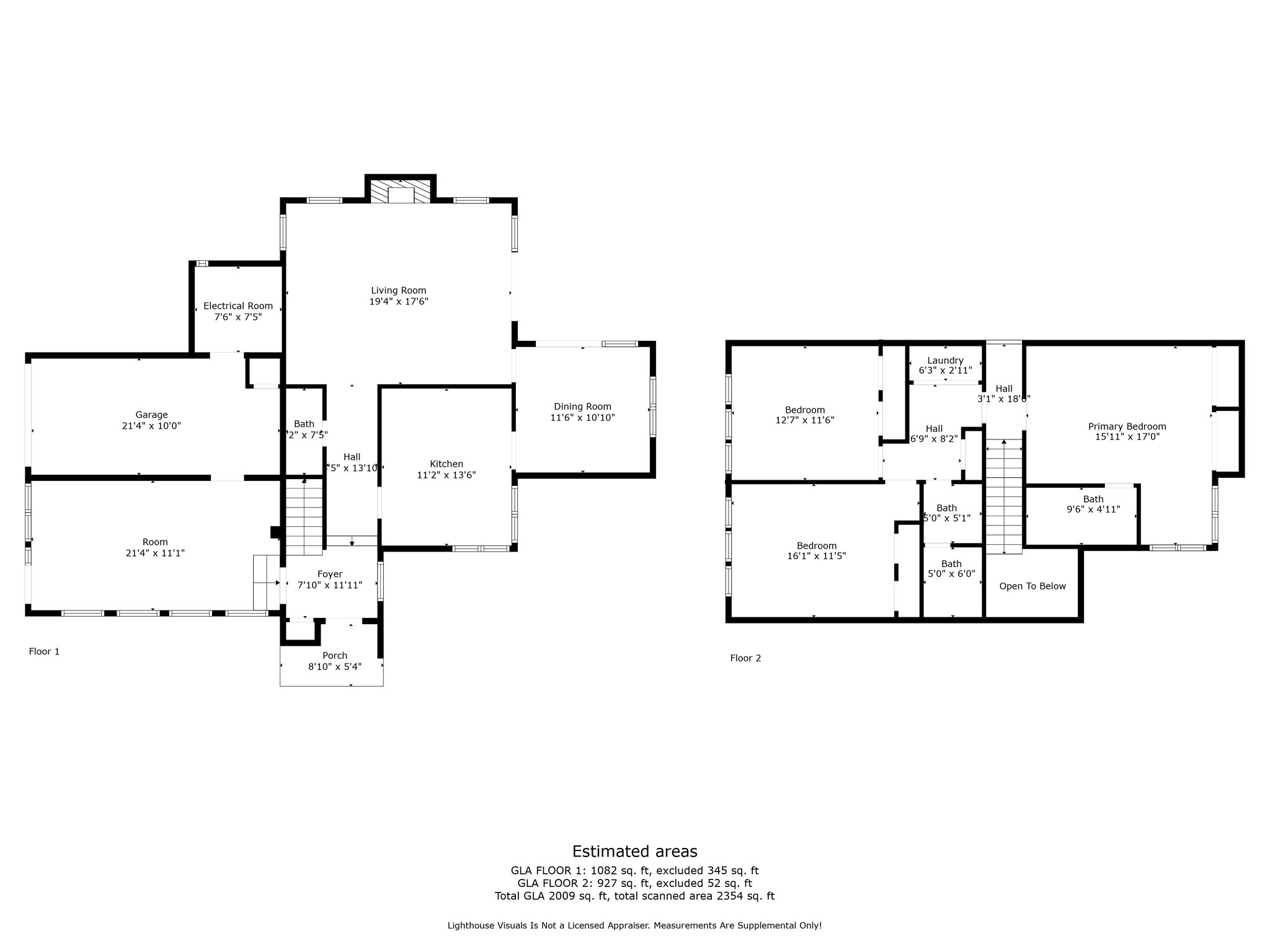
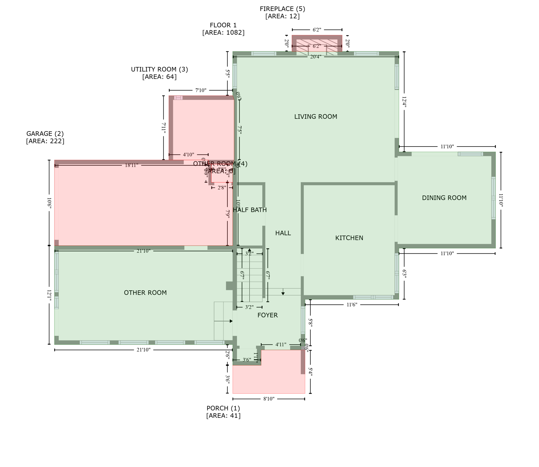
Floor Plans
Slideshow
Photo Grid
Hide
Previous
Next