210 Bobwhite Rd, Hubert, NC 28539
Toggle Navigation
Images
Floor Plans
Map
210 Bobwhite Rd
Hubert, NC 28539
Scroll to Content
Images
Slideshow
Photo Grid
Hide
Previous
Next
Show more
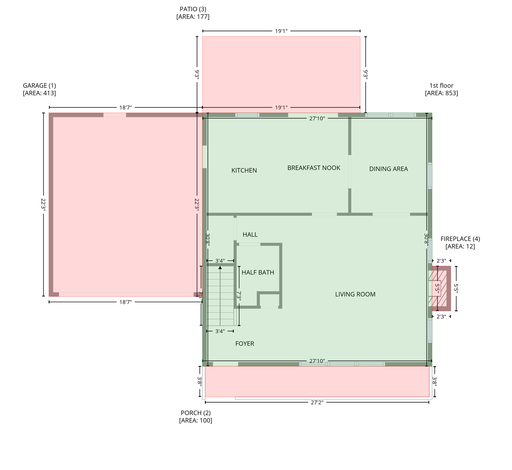
Floor Plans
Slideshow
Photo Grid
Hide
Previous
Next