3901 Coltswood Dr, Greensboro, NC 27406
Toggle Navigation
Images
Floor Plans
Map
3901 Coltswood Dr
Greensboro, NC 27406
Scroll to Content
Images
Slideshow
Photo Grid
Hide
Previous
Next
Show more
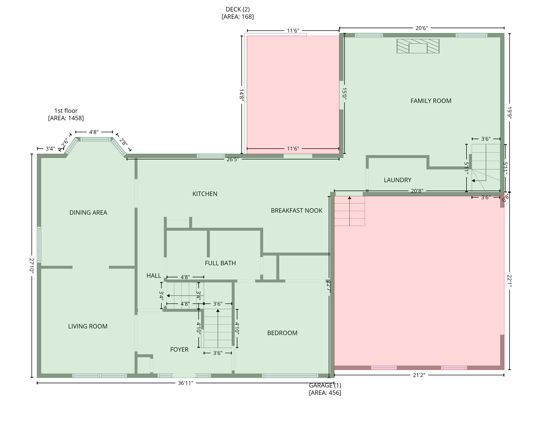
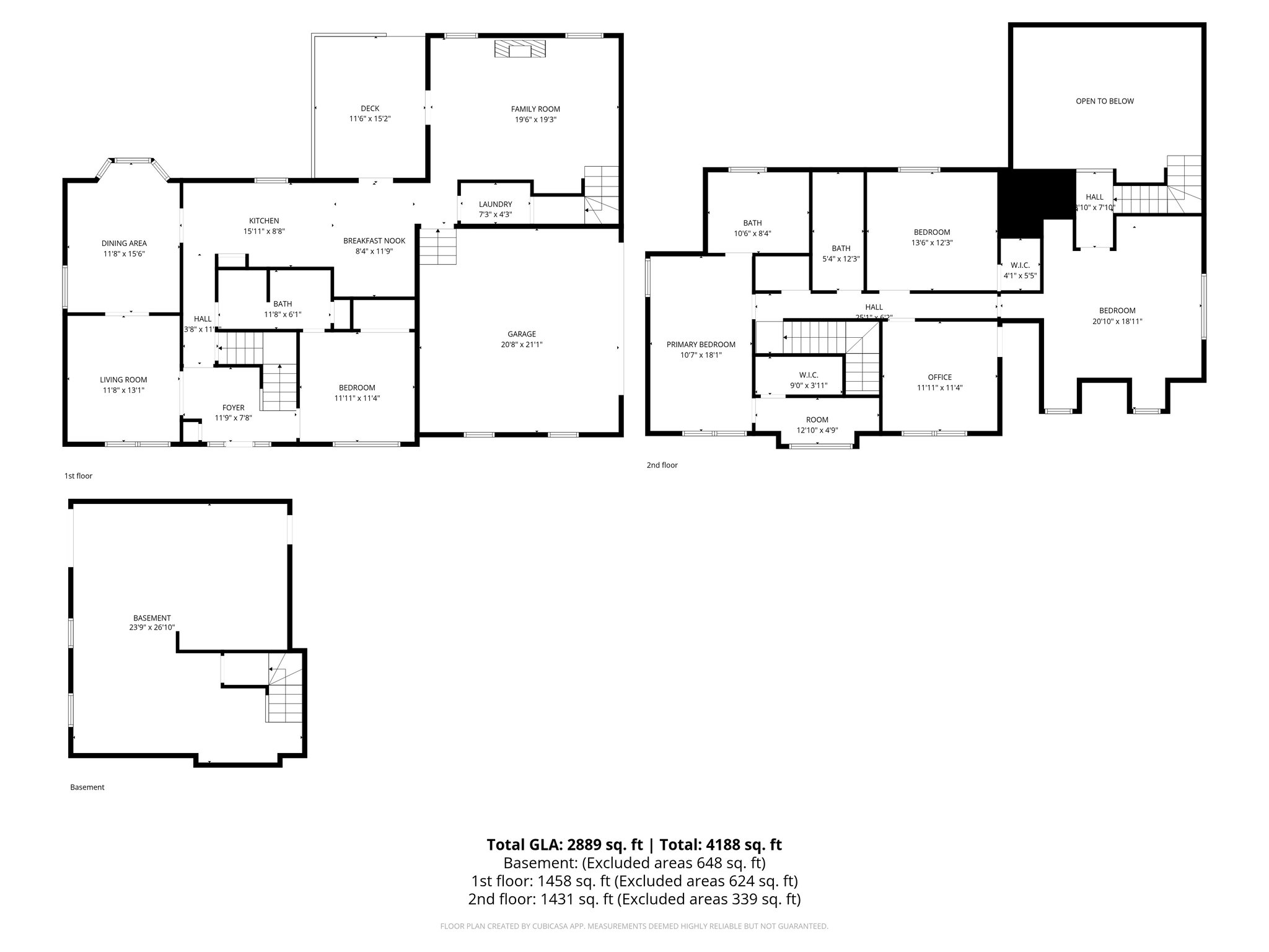
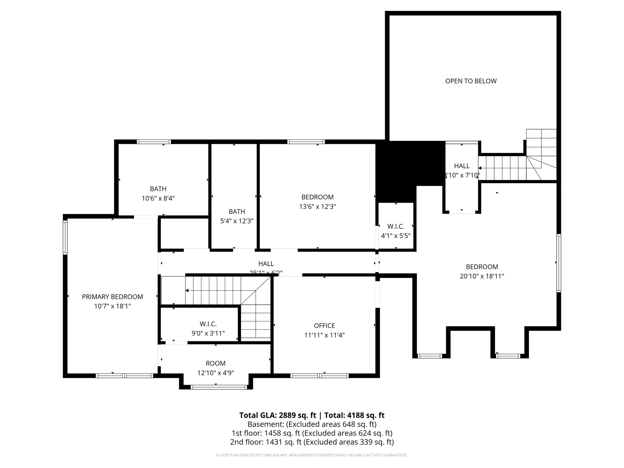
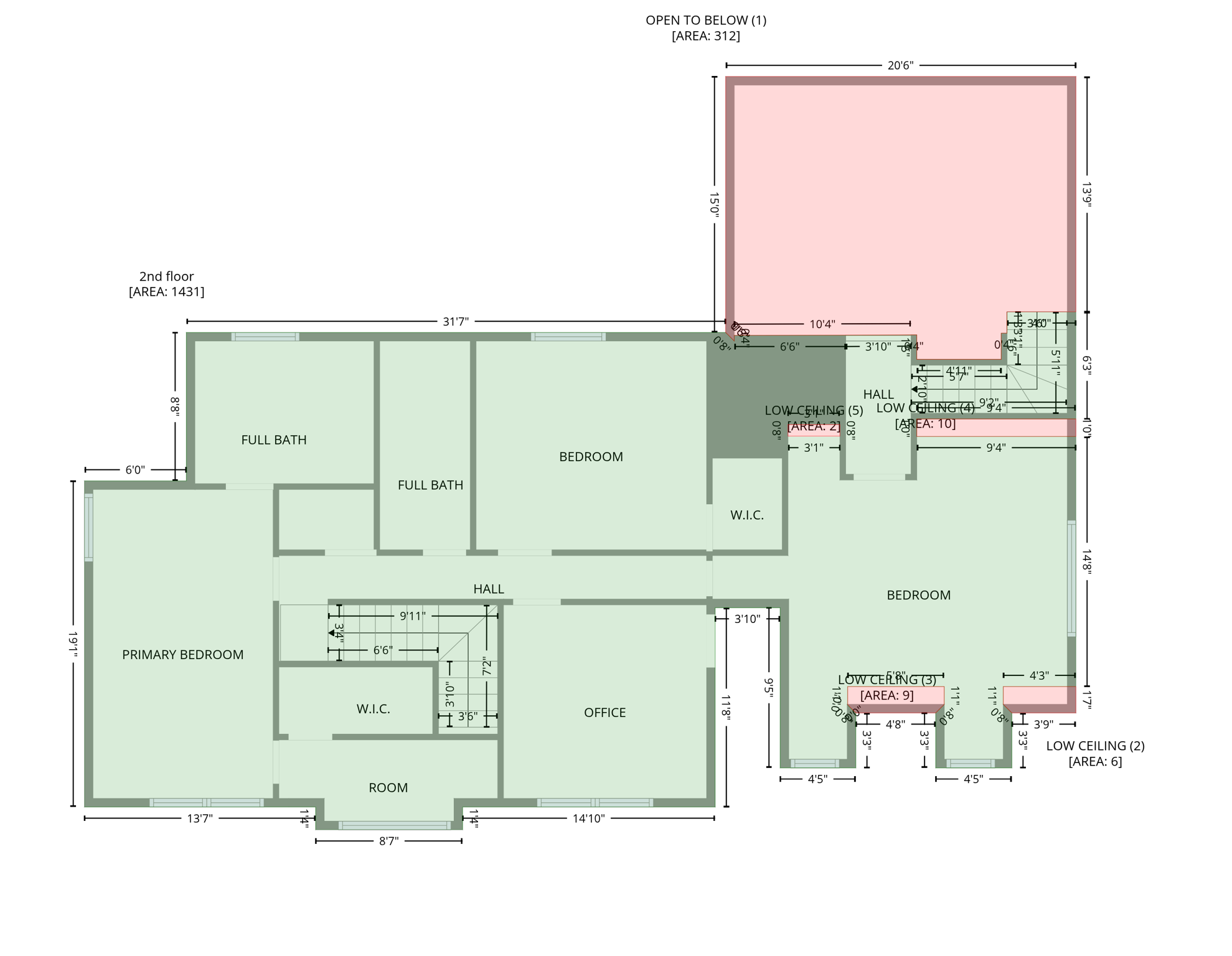
Floor Plans
Slideshow
Photo Grid
Hide
Previous
Next