263 Morgan Branch Rd, Leicester, NC 28748
Toggle Navigation
Images
Floor Plans
Map
263 Morgan Branch Rd
Leicester, NC 28748
Scroll to Content
Images
Slideshow
Photo Grid
Hide
Previous
Next
Show more
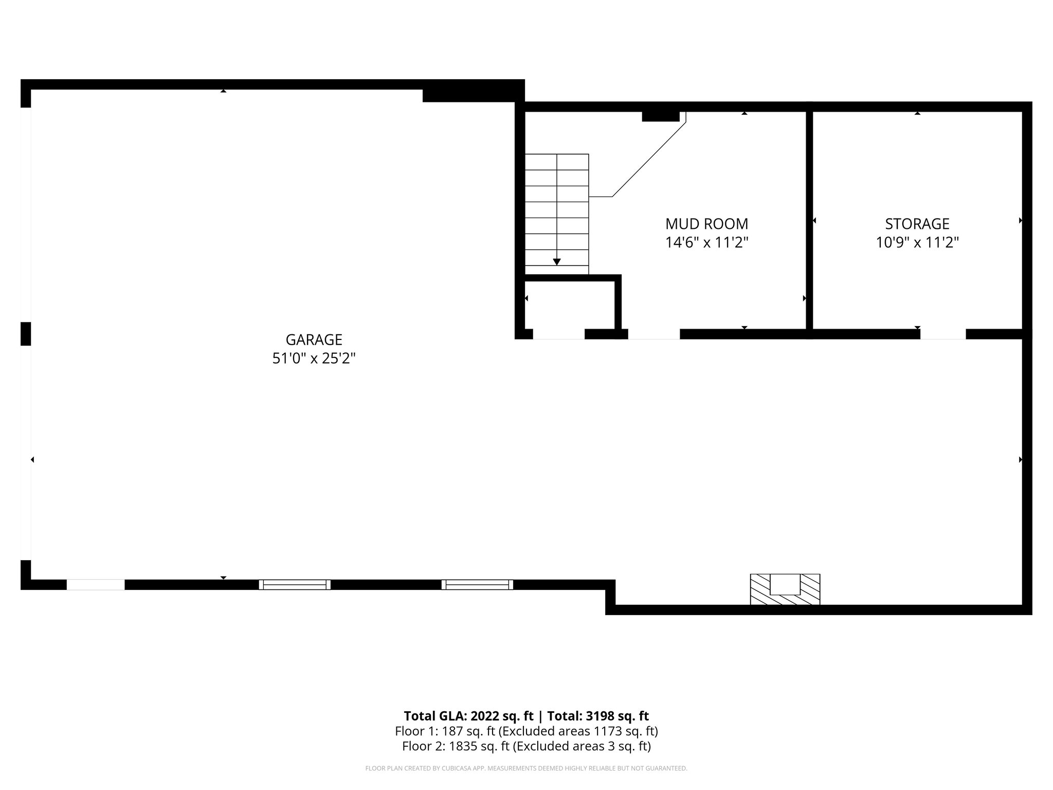
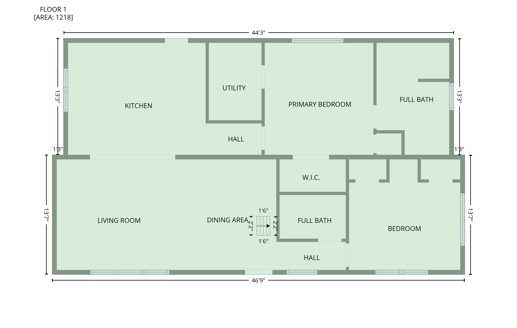
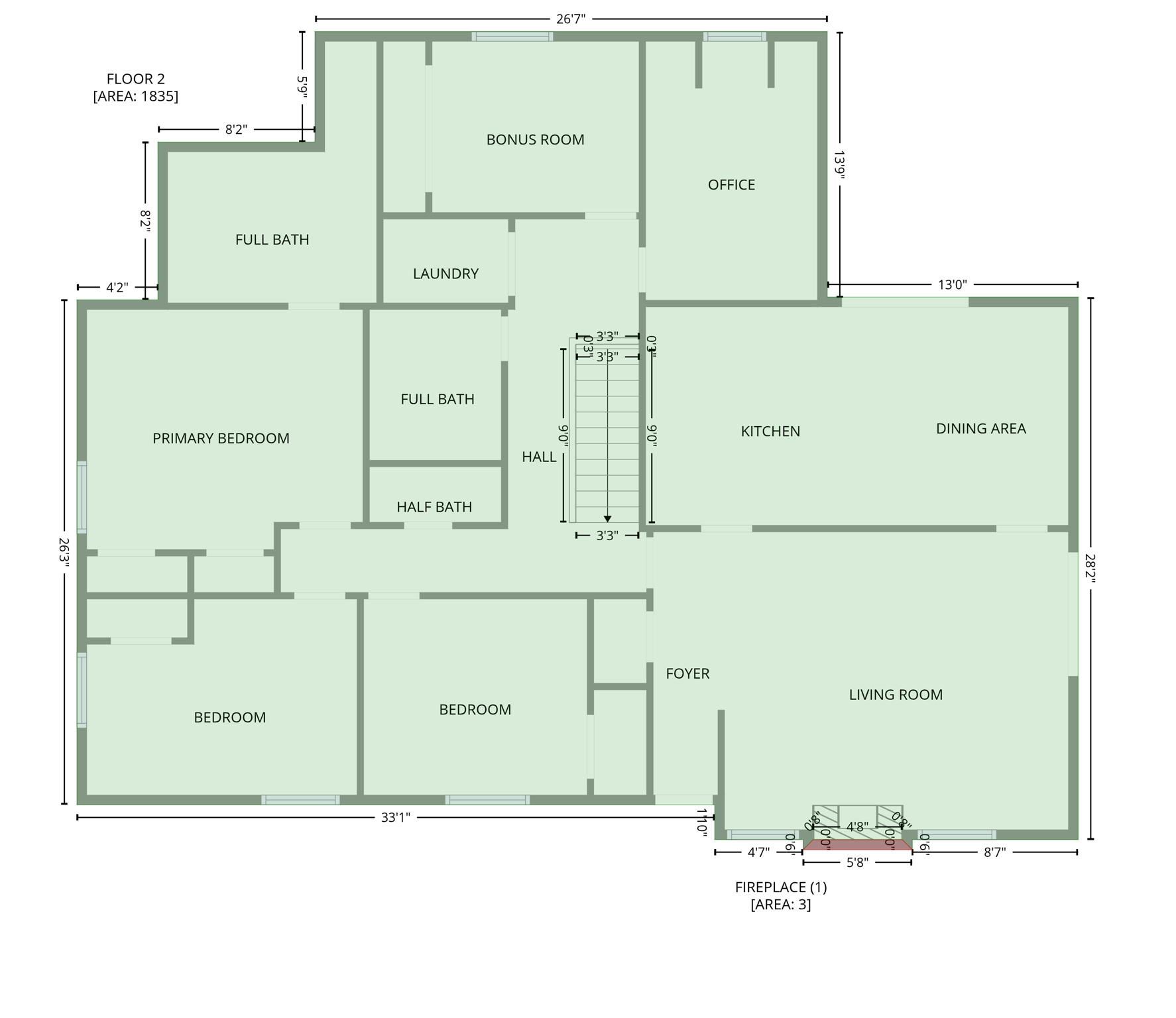
Floor Plans
Slideshow
Photo Grid
Hide
Previous
Next