822 Ducks Landing, Southern Pines, NC
Toggle Navigation
Images
Floor Plans
Map
822 Ducks Landing
Southern Pines, NC
Scroll to Content
Images
Slideshow
Photo Grid
Hide
Previous
Next
Show more
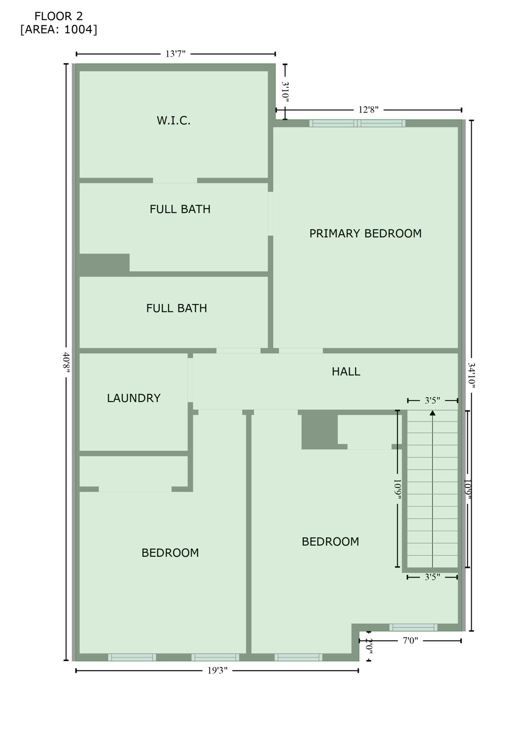
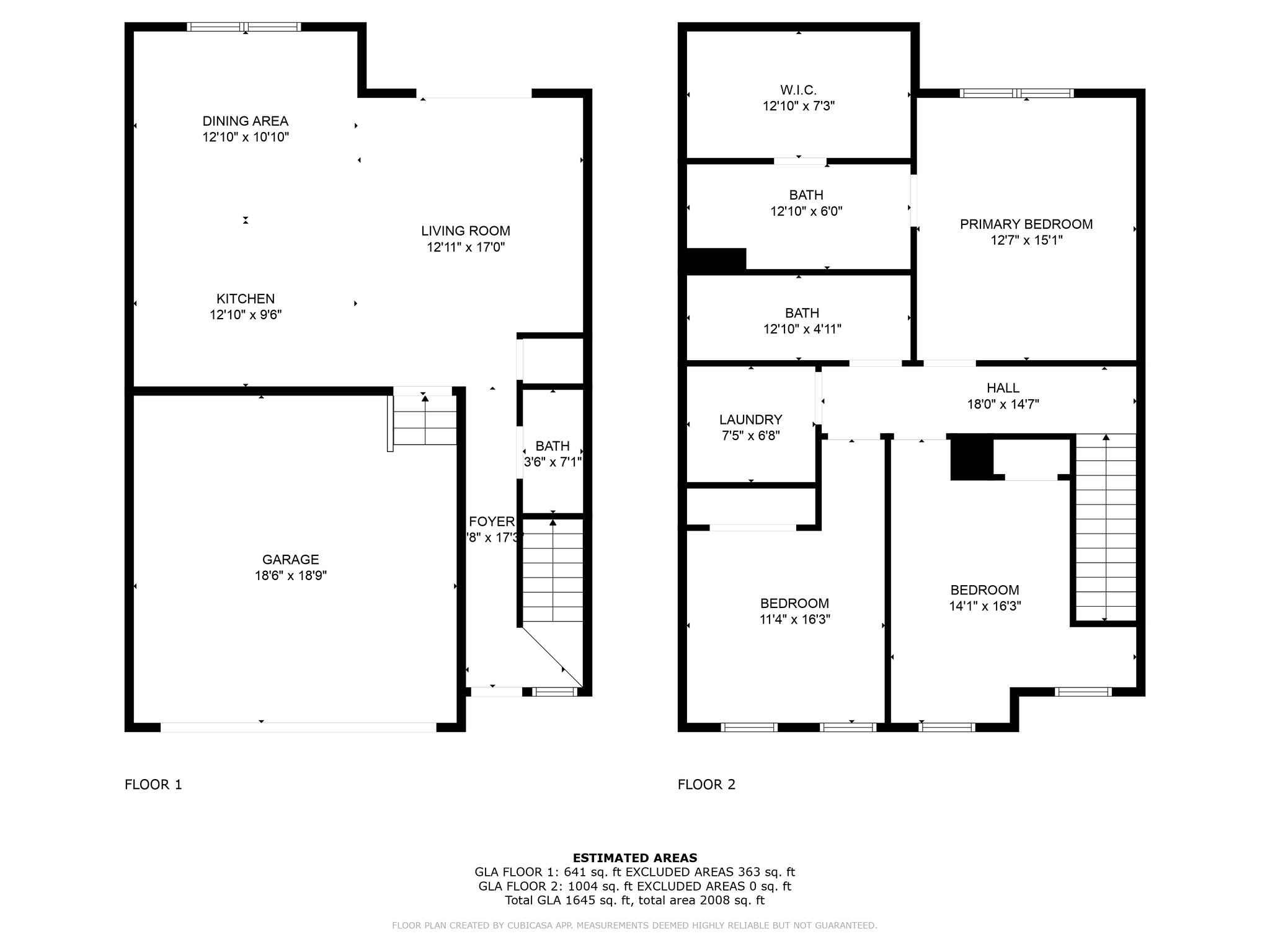
Floor Plans
Slideshow
Photo Grid
Hide
Previous
Next