115 Race Ct, Godwin, NC 28344
Toggle Navigation
Images
Floor Plans
Map
115 Race Ct
Godwin, NC 28344
Scroll to Content
Images
Slideshow
Photo Grid
Hide
Previous
Next
Show more
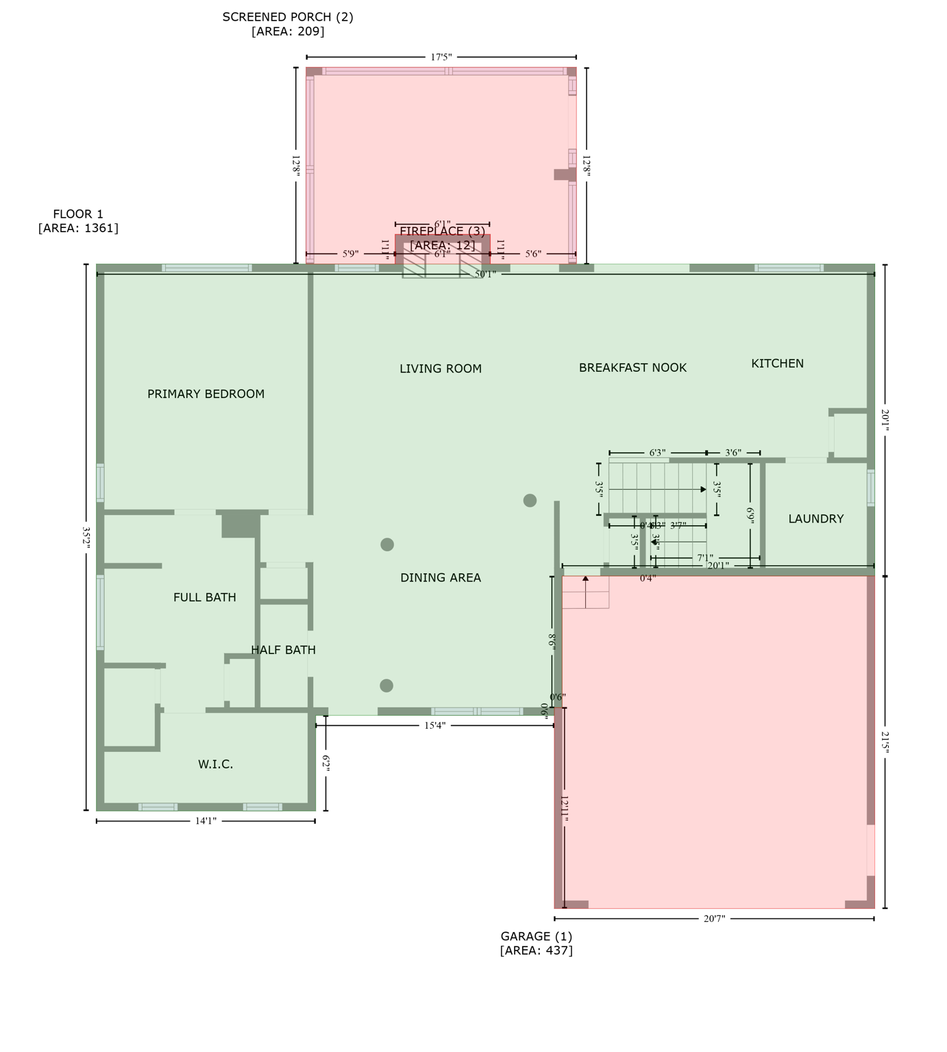
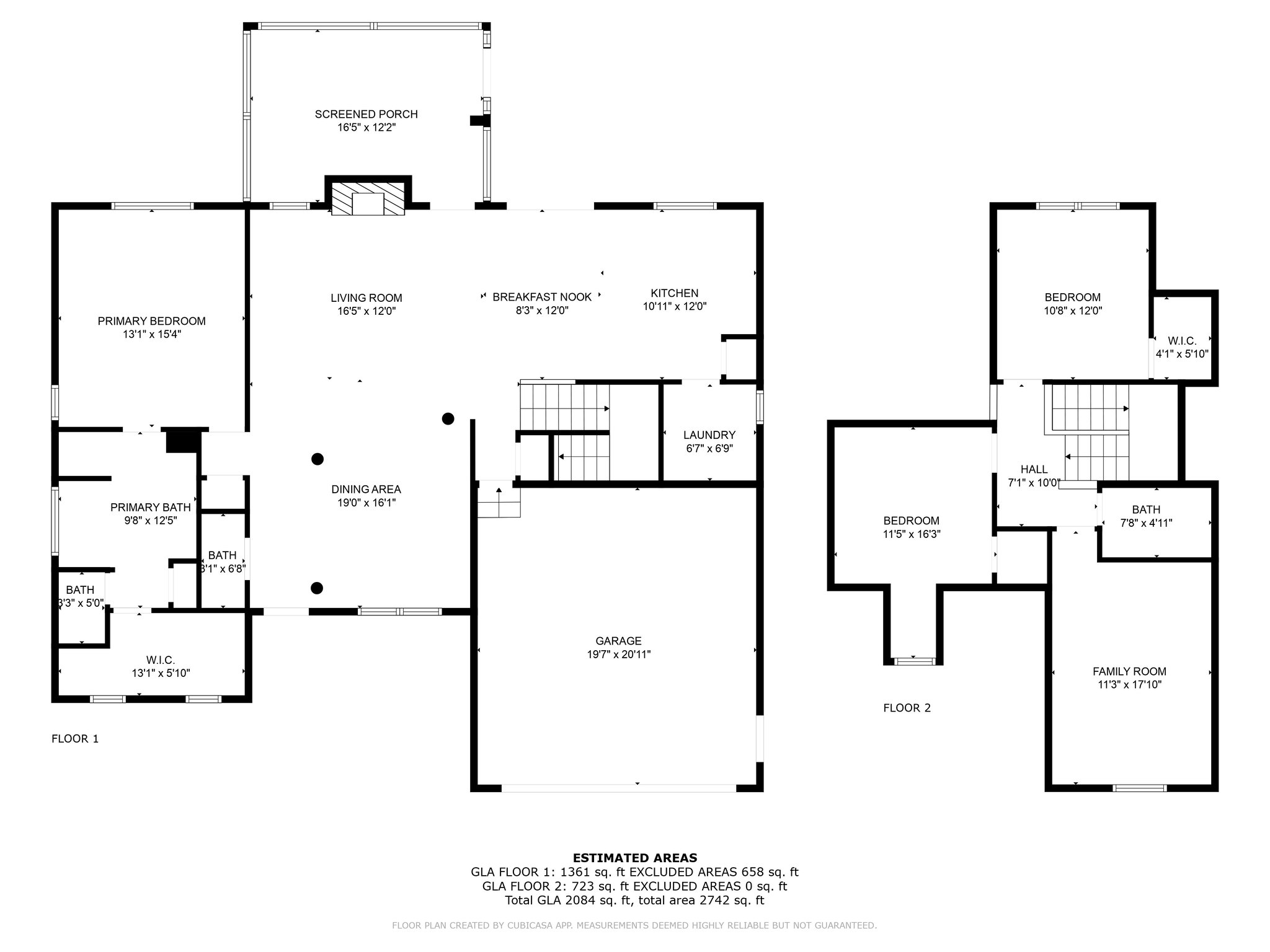
Floor Plans
Slideshow
Photo Grid
Hide
Previous
Next