5 Pin Oak Ct, Pinehurst, NC 28374
Toggle Navigation
Images
Floor Plans
Map
5 Pin Oak Ct
Pinehurst, NC 28374
Scroll to Content
Images
Slideshow
Photo Grid
Hide
Previous
Next
Show more
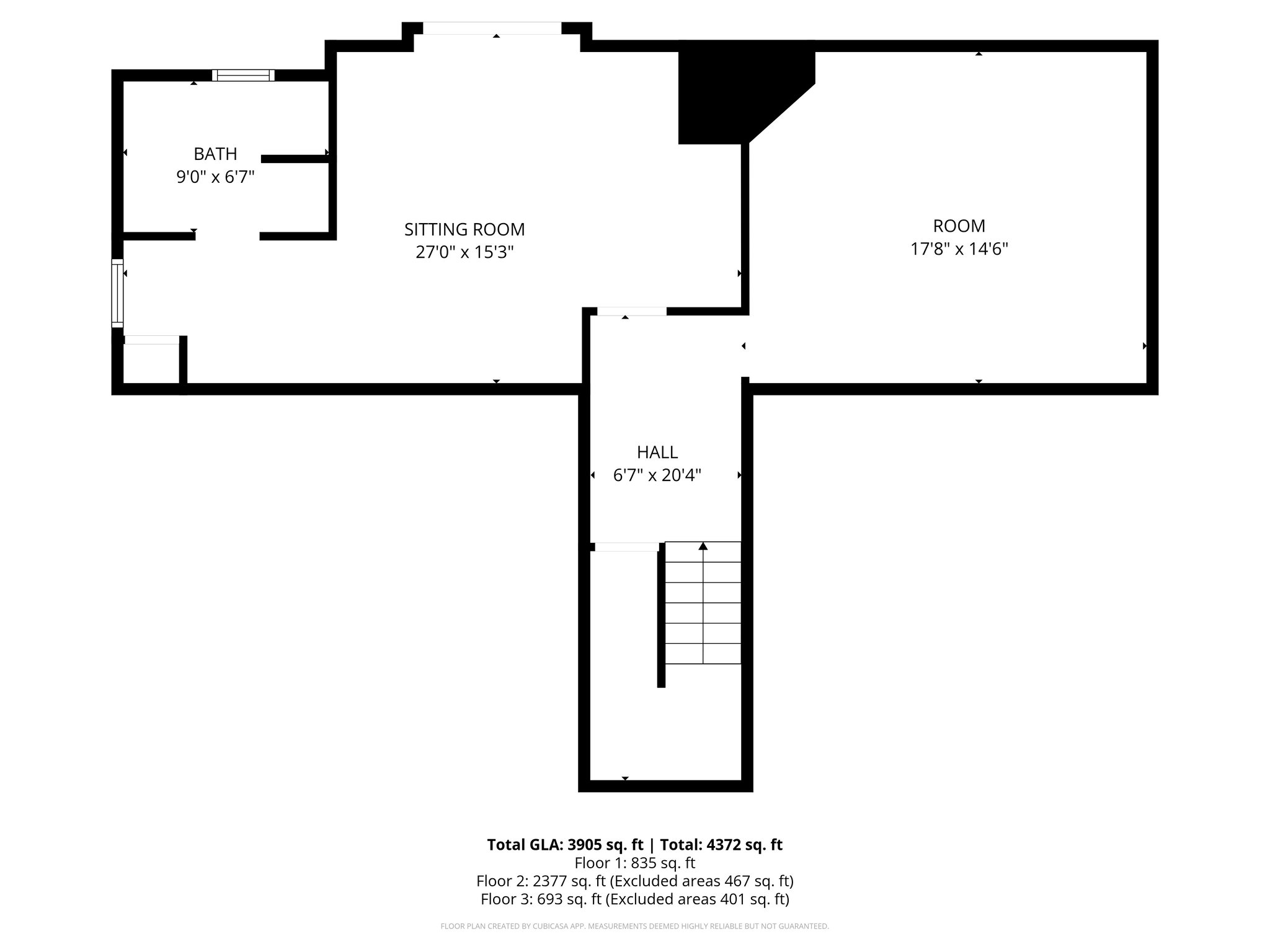
Floor Plans
Slideshow
Photo Grid
Hide
Previous
Next