308 Cabinwood Ct, Richlands, NC 28574
Toggle Navigation
Images
Floor Plans
Map
308 Cabinwood Ct
Richlands, NC 28574
Scroll to Content
Images
Slideshow
Photo Grid
Hide
Previous
Next
Show more
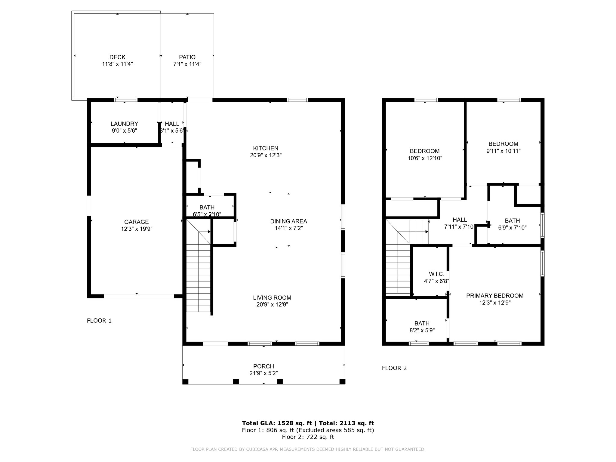
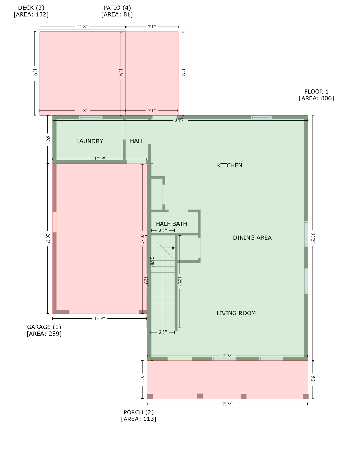
Floor Plans
Slideshow
Photo Grid
Hide
Previous
Next