1121 Revenell Dr, Sanford, NC 27330
Toggle Navigation
Images
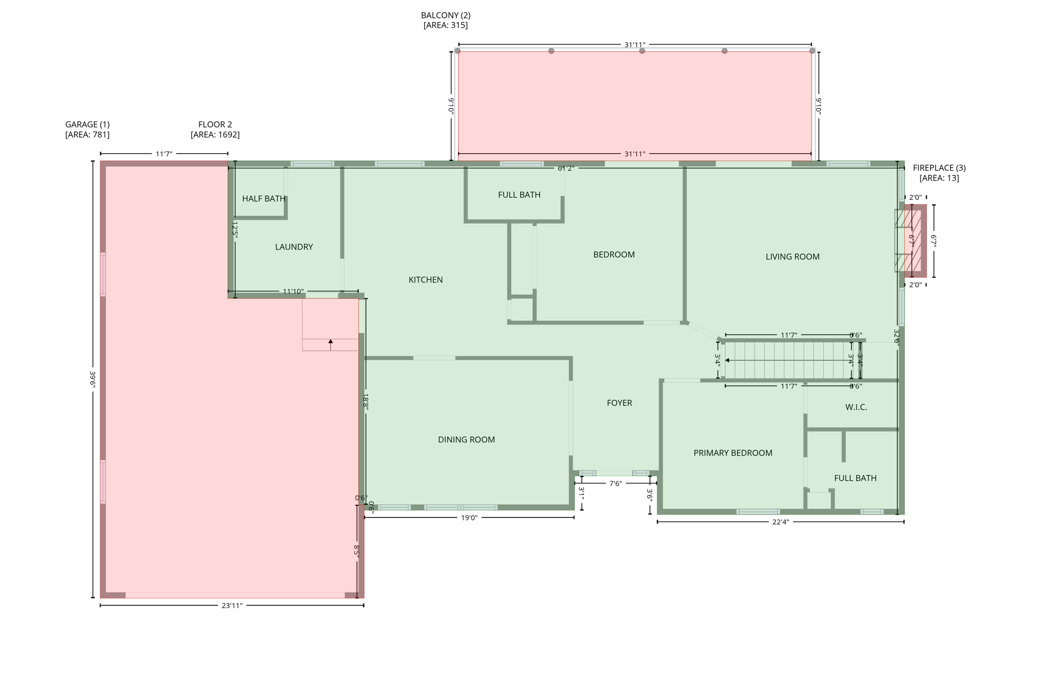
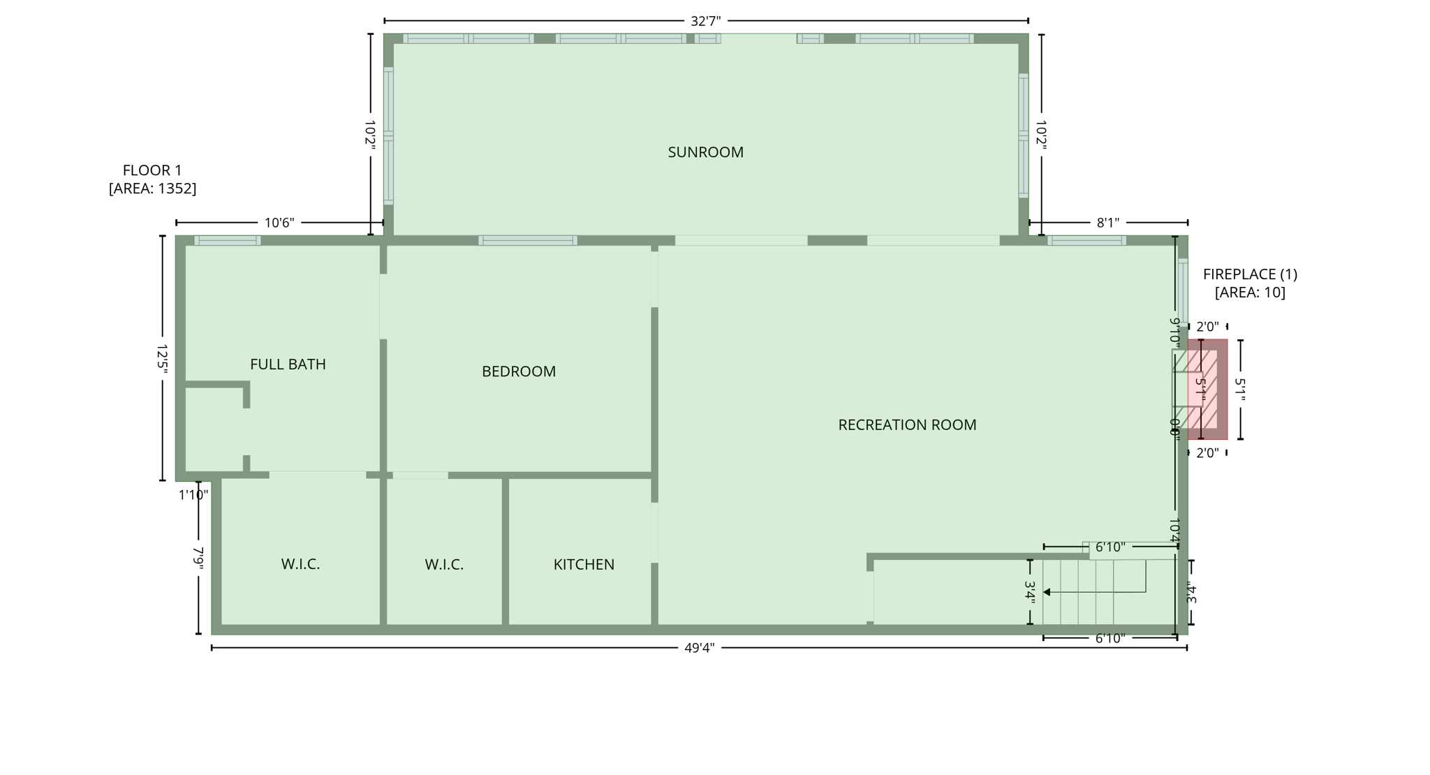
Floor Plans
3D Tour
Map
1121 Revenell Dr
Sanford, NC 27330
Scroll to Content
Images
Slideshow
Photo Grid
Hide
Previous
Next
Show more
Floor Plans
Slideshow
Photo Grid
Hide
Previous
Next
3D Tour
Content Coming Soon