1910 York St, Kinston, NC 28504
Toggle Navigation
Images
Floor Plans
Map
1910 York St
Kinston, NC 28504
Scroll to Content
Images
Slideshow
Photo Grid
Hide
Previous
Next
Show more
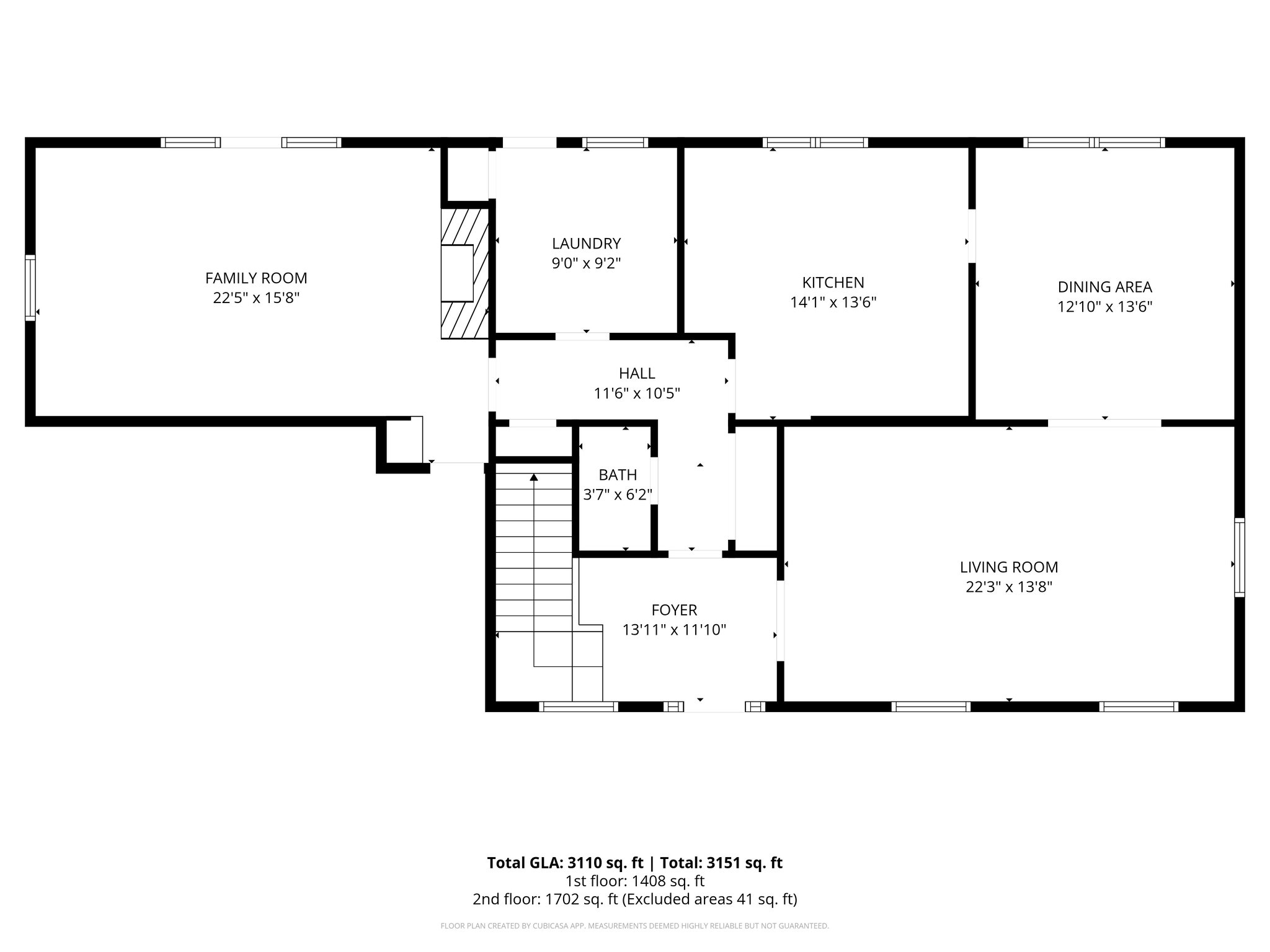
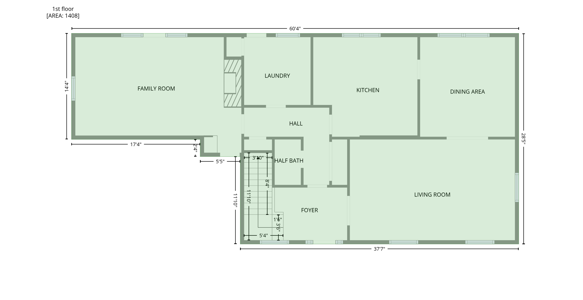
Floor Plans
Slideshow
Photo Grid
Hide
Previous
Next