1718 Will Suitt Rd, Creedmoor, NC 27522
Toggle Navigation
Images
Floor Plans
3D Tour
Map
1718 Will Suitt Rd
Creedmoor, NC 27522
Scroll to Content
Images
Slideshow
Photo Grid
Hide
Previous
Next
Show more
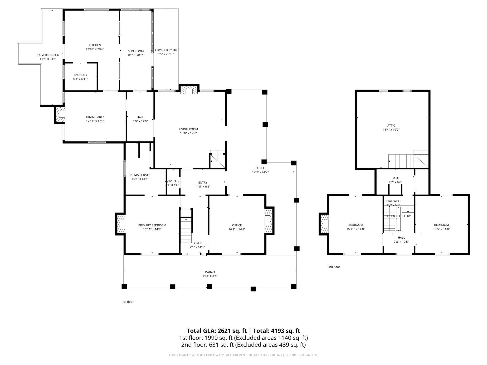
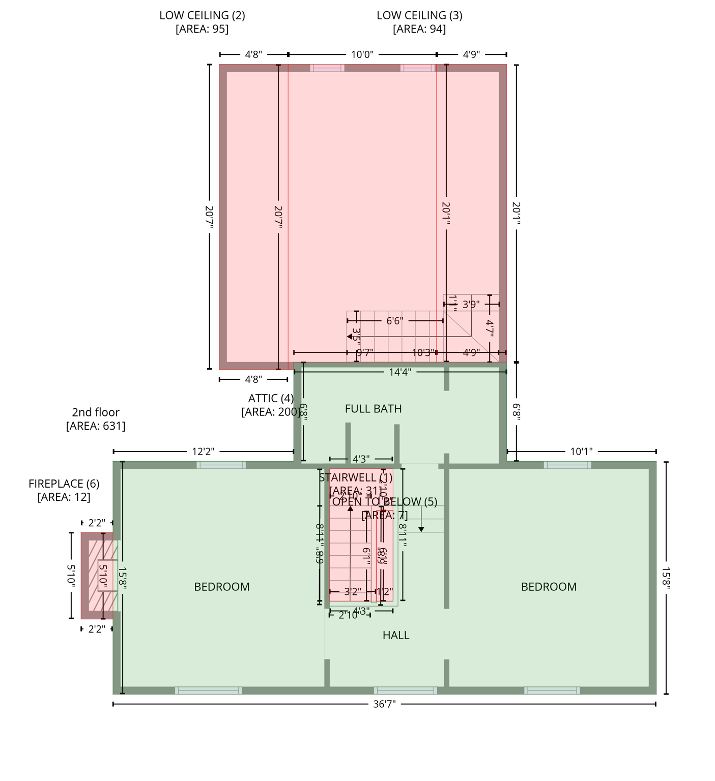
Floor Plans
Slideshow
Photo Grid
Hide
Previous
Next
3D Tour
Content Coming Soon