111 Countryside Ct, Newport, NC 28570
Toggle Navigation
Images
Floor Plans
3D Tour
Map
111 Countryside Ct
Newport, NC 28570
Scroll to Content
Images
Slideshow
Photo Grid
Hide
Previous
Next
Show more
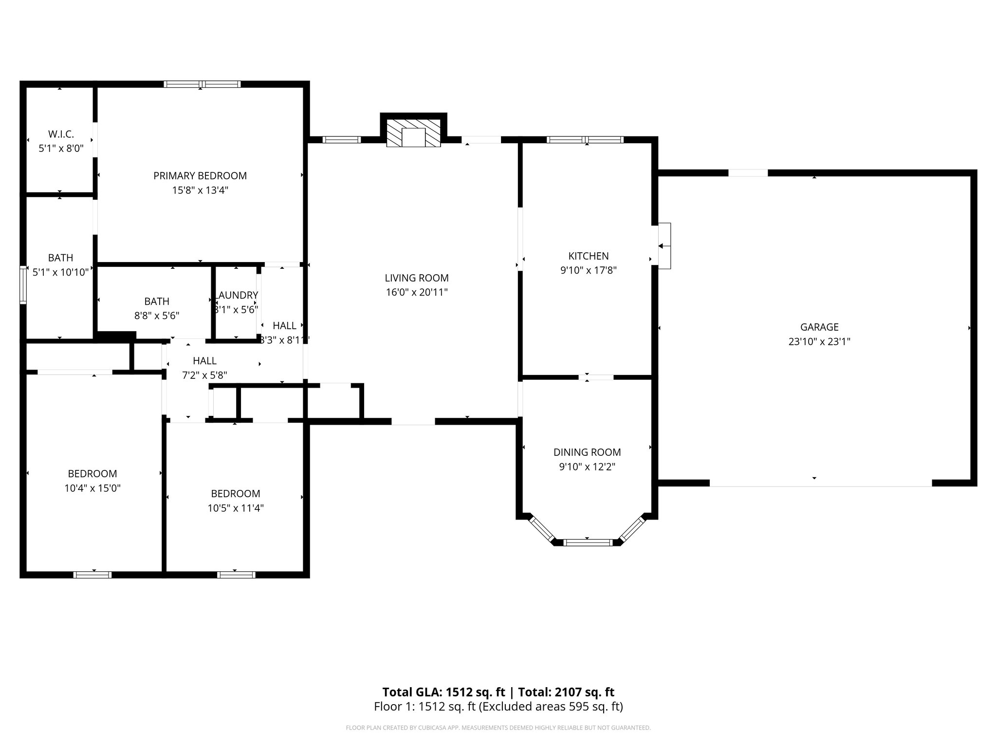
Floor Plans
Slideshow
Photo Grid
Hide
Previous
Next
3D Tour
Content Coming Soon