51 Water Front Ln, Timberlake, NC 27583
Toggle Navigation
Images
Floor Plans
Map
51 Water Front Ln
Timberlake, NC 27583
Scroll to Content
Images
Slideshow
Photo Grid
Hide
Previous
Next
Show more
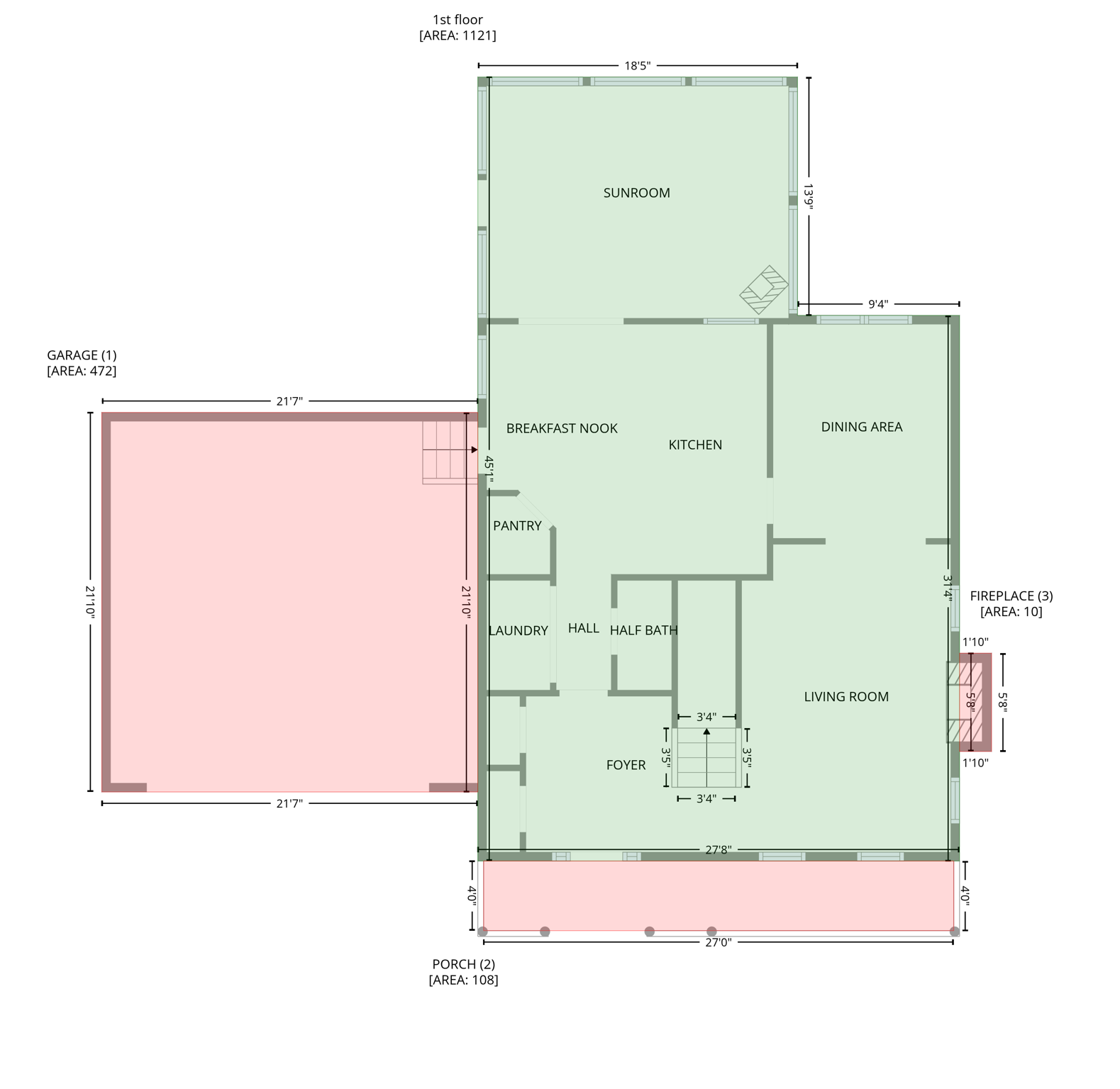
Floor Plans
Slideshow
Photo Grid
Hide
Previous
Next