976 Estate Rd, Semora, NC 27343
Toggle Navigation
Images
Floor Plans
Map
976 Estate Rd
Semora, NC 27343
Scroll to Content
Images
Slideshow
Photo Grid
Hide
Previous
Next
Show more
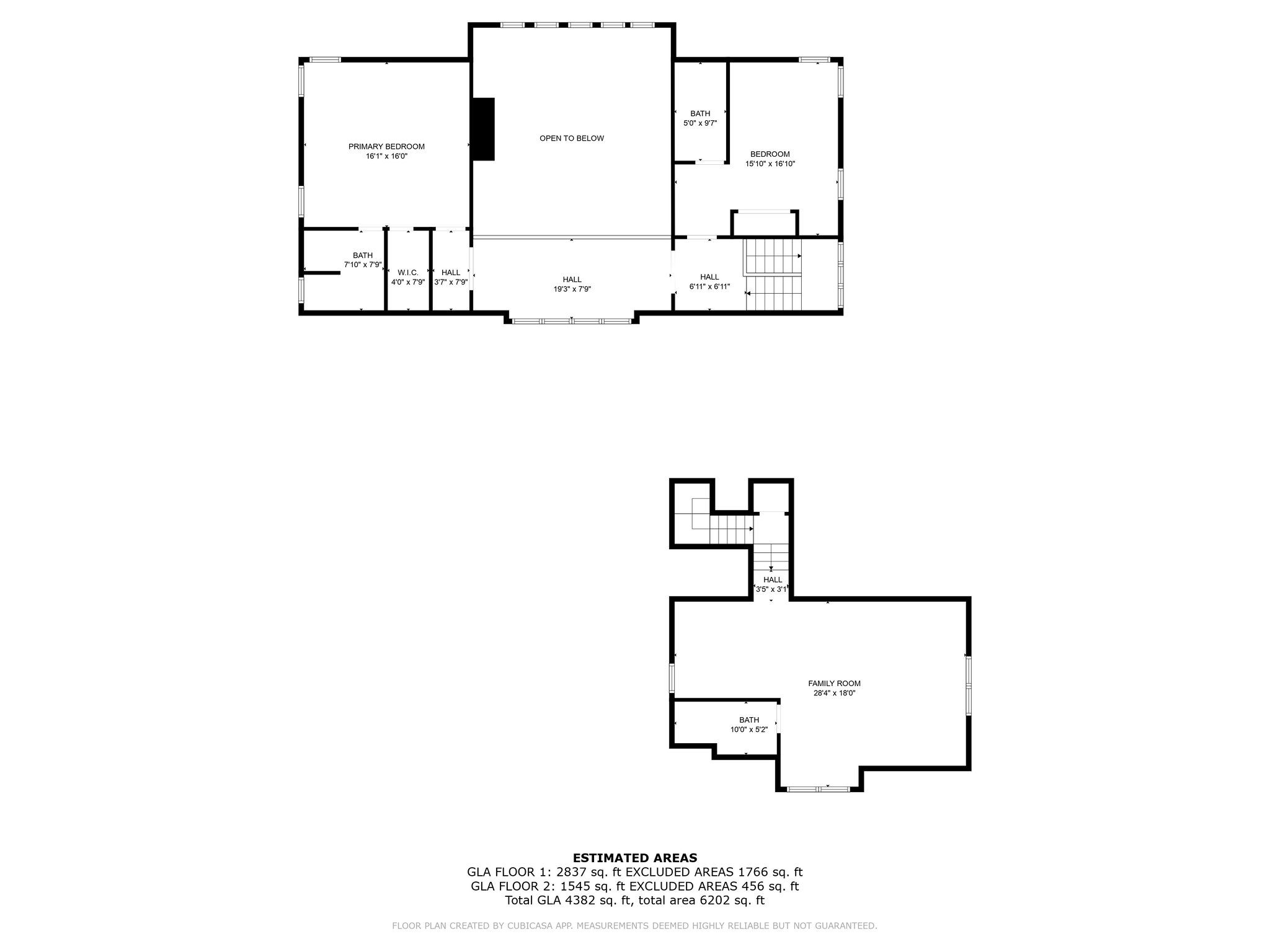
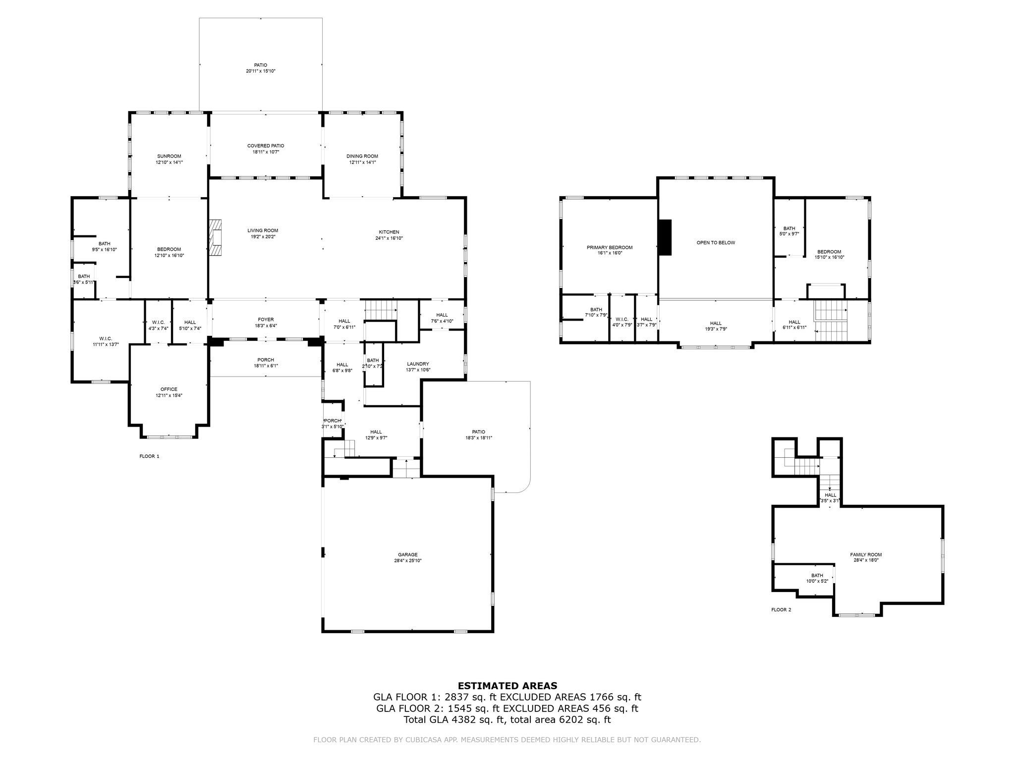
Floor Plans
Slideshow
Photo Grid
Hide
Previous
Next