994 Micahs Way N, Spring Lake, NC 28390
Toggle Navigation
Images
Floor Plans
3D Tour
Map
994 Micahs Way N
Spring Lake, NC 28390
Scroll to Content
Images
Slideshow
Photo Grid
Hide
Previous
Next
Show more
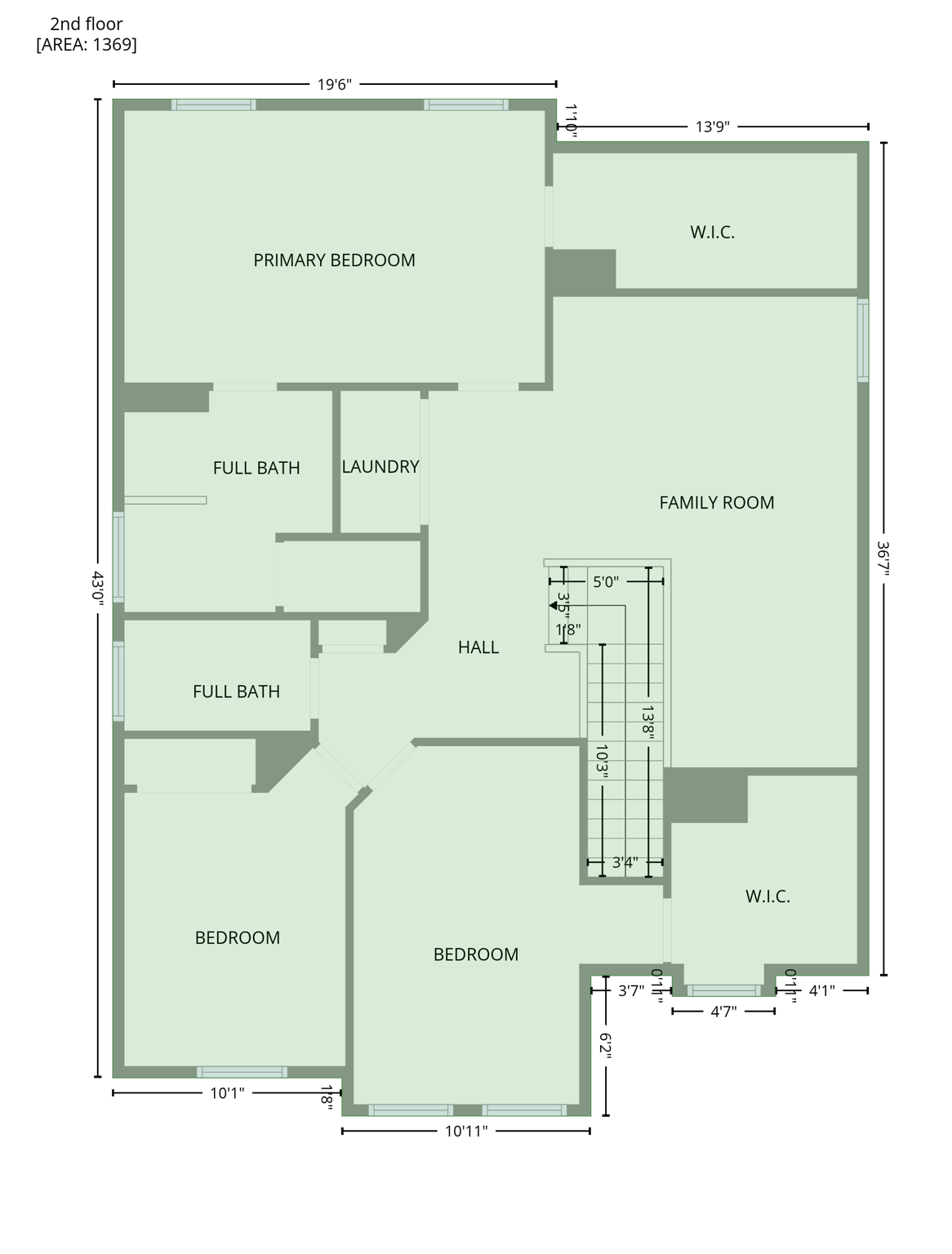
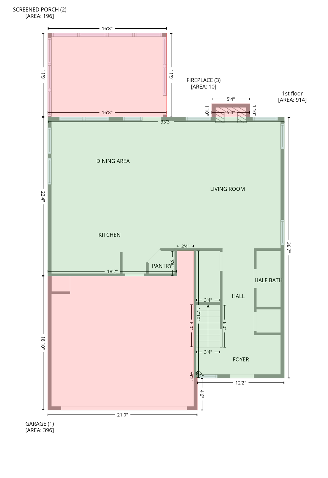
Floor Plans
Slideshow
Photo Grid
Hide
Previous
Next
3D Tour
Content Coming Soon