2265 W Front St, Burlington, NC 27215
Toggle Navigation
Images
Floor Plans
Map
2265 W Front St
Burlington, NC 27215
Scroll to Content
Images
Slideshow
Photo Grid
Hide
Previous
Next
Show more
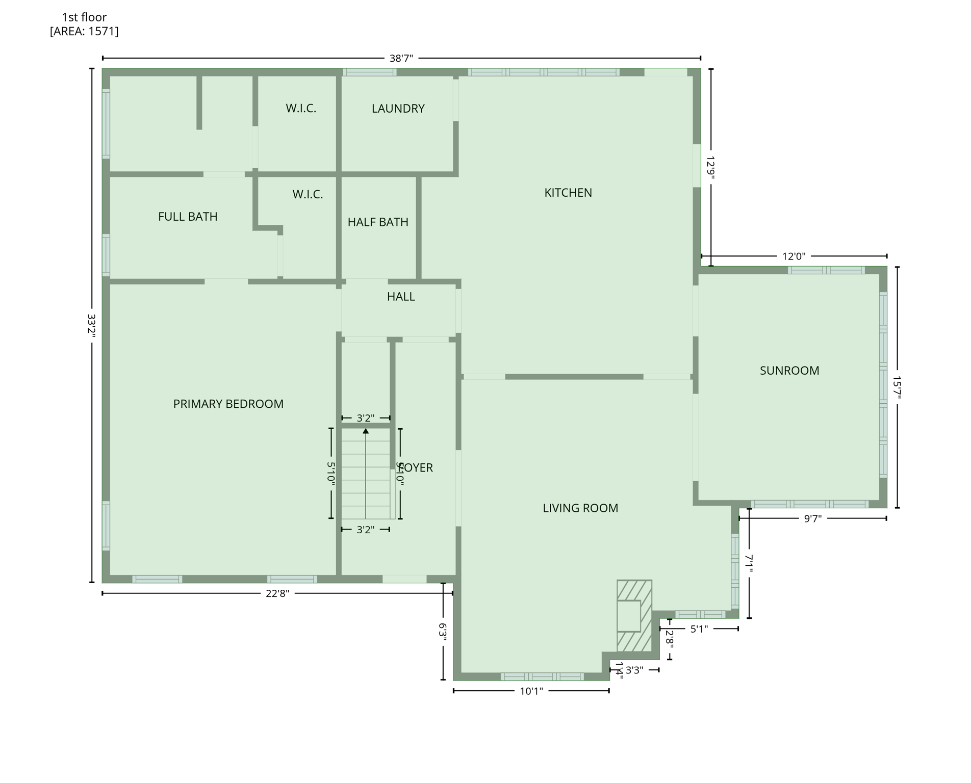
Floor Plans
Slideshow
Photo Grid
Hide
Previous
Next