1852 Old Wilson Rd, Rocky Mount, NC 27801
Toggle Navigation
Images
Floor Plans
Map
1852 Old Wilson Rd
Rocky Mount, NC 27801
Scroll to Content
Images
Slideshow
Photo Grid
Hide
Previous
Next
Show more
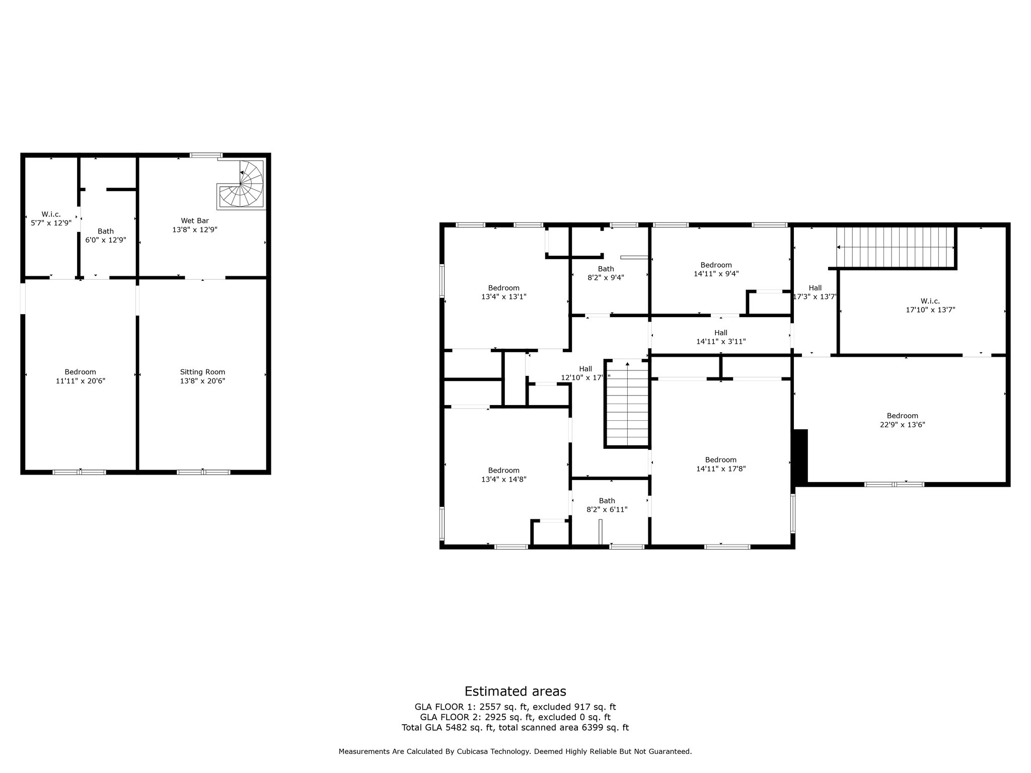
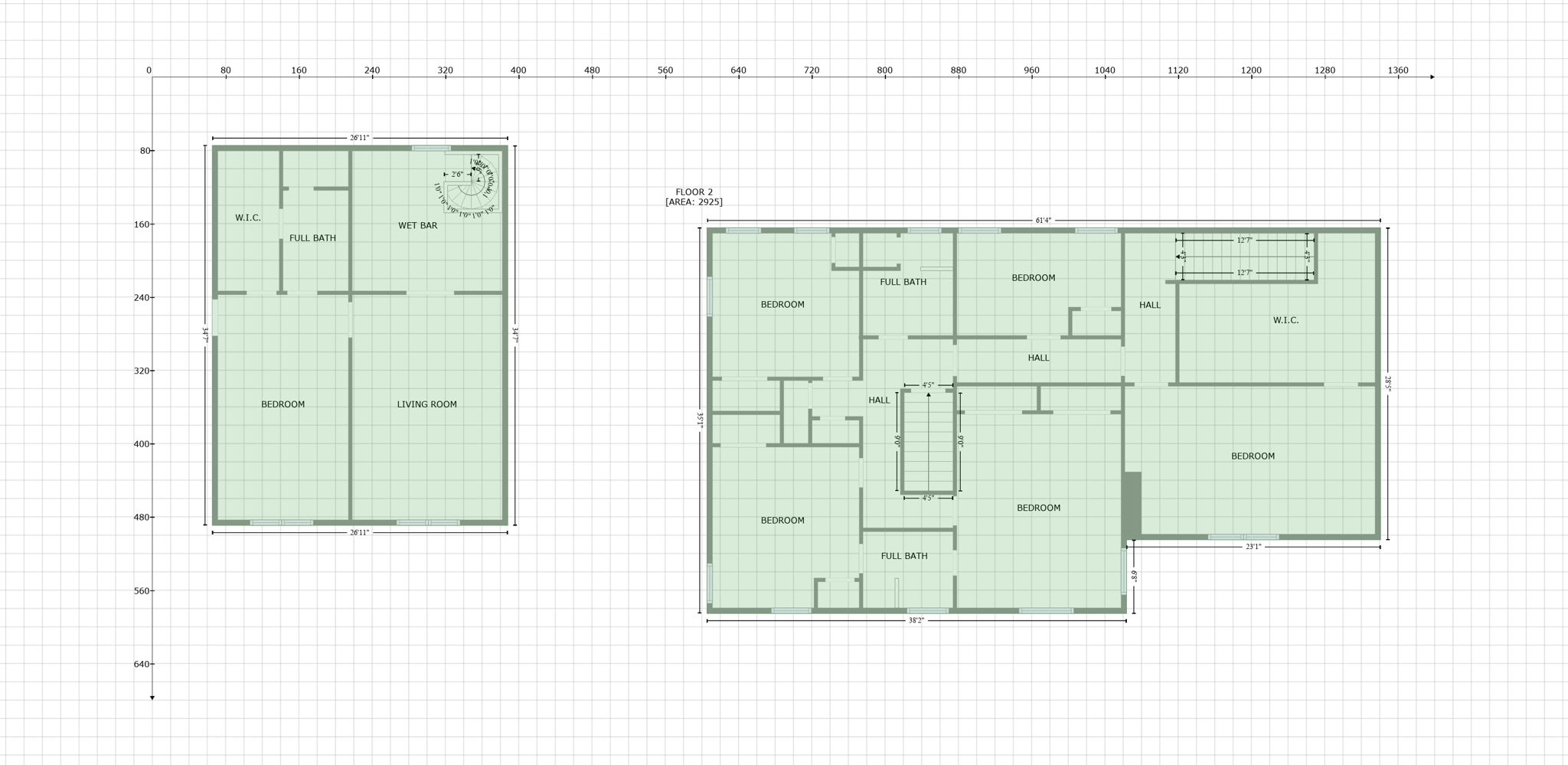
Floor Plans
Slideshow
Photo Grid
Hide
Previous
Next