7985 Stoney Creek Ln, Nashville, NC 27856
Toggle Navigation
Images
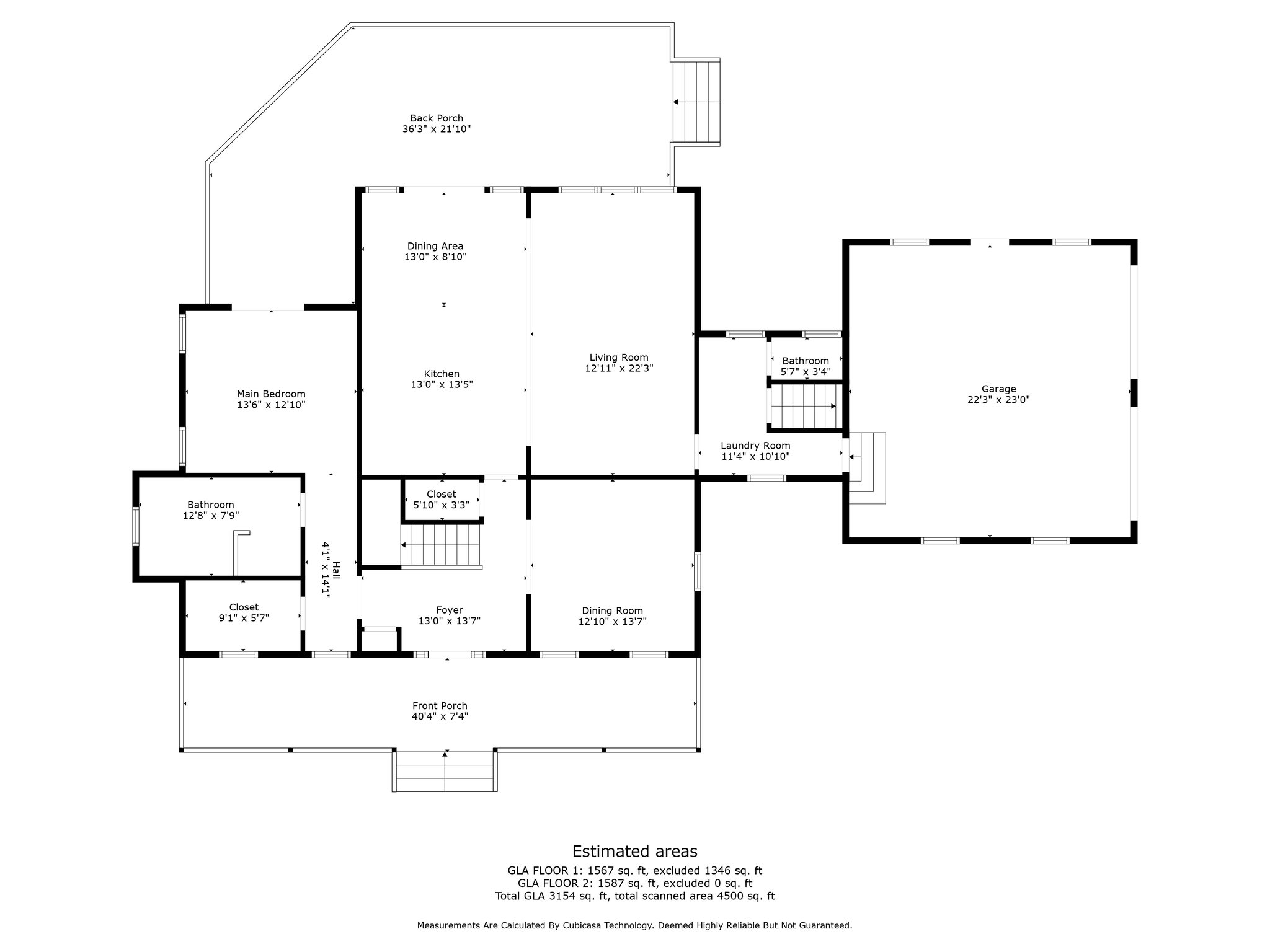
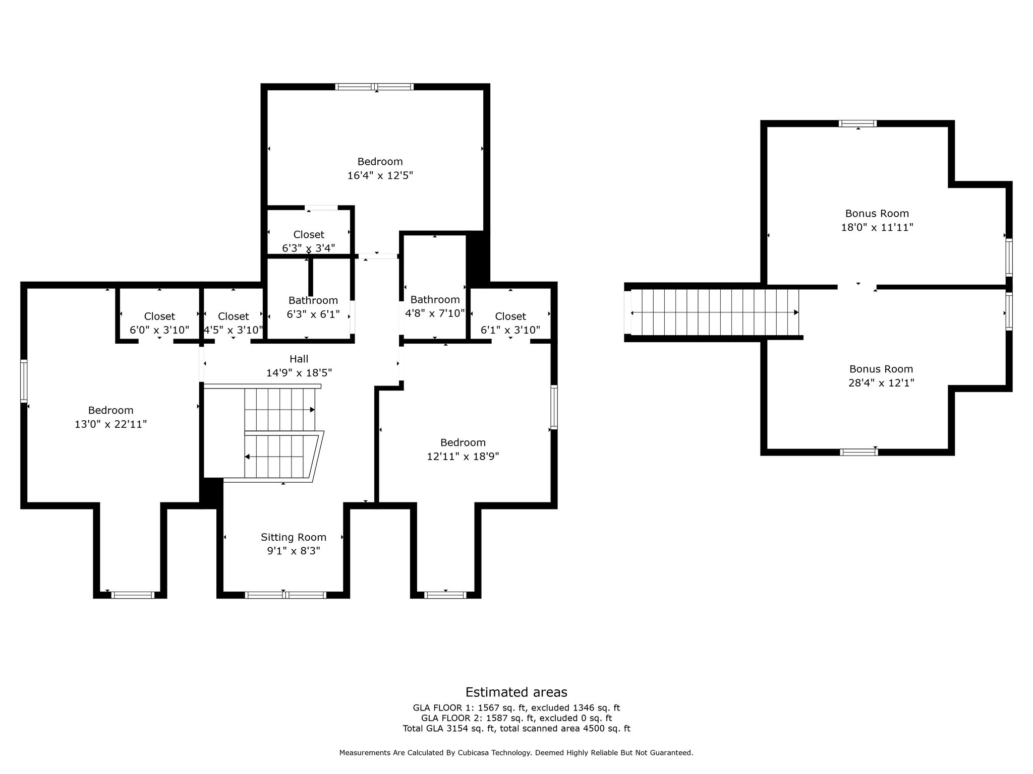
Floor Plans
3D Tour
Map
7985 Stoney Creek Ln
Nashville, NC 27856
Scroll to Content
Images
Slideshow
Photo Grid
Hide
Previous
Next
Show more
Floor Plans
Slideshow
Photo Grid
Hide
Previous
Next
3D Tour
Content Coming Soon