3502 Crosstimbers Dr, Greensboro, NC 27410
Toggle Navigation
Images
Floor Plans
Map
3502 Crosstimbers Dr
Greensboro, NC 27410
Scroll to Content
Images
Slideshow
Photo Grid
Hide
Previous
Next
Show more
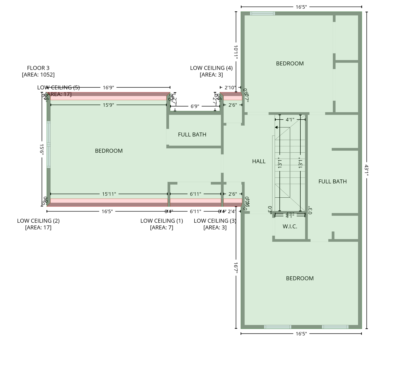
Floor Plans
Slideshow
Photo Grid
Hide
Previous
Next